Khám phá hành trình thiết kế nhà hàng Đức Hạnh theo phong cách tân cổ điển do Sơn Hà Group triển khai tại Thái Nguyên. Bài viết hé lộ ý tưởng kiến trúc, mặt bằng công năng và câu chuyện sáng tạo phía sau công trình đang thu hút sự chú ý của nhiều thực khách.
NỘI DUNG CHÍNH
Trong thế giới kiến trúc, có những công trình tồn tại chỉ để phục vụ nhu cầu cơ bản. Nhưng cũng có những công trình mang trong mình một câu chuyện, một dấu ấn riêng không thể nhầm lẫn. Dự án thiết kế nhà hàng Đức Hạnh tại KCN Đức Hạnh là một minh chứng điển hình.
Chủ đầu tư tìm đến Sơn Hà Group với mong muốn xây dựng không gian ẩm thực tân cổ điển, sang trọng và đủ sức trở thành điểm nhấn của khu công nghiệp đang phát triển mạnh mẽ. Họ không muốn chỉ có một nhà hàng - họ muốn một biểu tượng của trải nghiệm, nơi thực khách có thể tìm thấy những khoảnh khắc thư thái và doanh nghiệp có thể tự hào tiếp đón đối tác.
Hành trình sáng tạo cho công trình này vì thế được khởi đầu với rất nhiều cảm xúc và kỳ vọng.
Nhìn vào phối cảnh 3D, công trình thiết kế nhà hàng Đức Hạnh gây ấn tượng mạnh nhờ phong cách tân cổ điển được thể hiện rõ nét trong từng chi tiết.

Những mảng kính cao kéo dài phản chiếu ánh sáng tự nhiên đã biến công trình thành biểu tượng của vẻ đẹp cổ điển, nổi bật cả ngày lẫn đêm.

Lối vào chính với khối đua lớn mang đến cảm giác sang trọng ngay từ bước chân đầu tiên. Phía trong lớp kính, đèn trang trí nghệ thuật tạo điểm nhấn như lời chào đầy tinh tế dành cho mọi thực khách.
Bậc tam cấp rộng tạo cảm giác quyền uy, khiến nhà hàng trở nên đẳng cấp chẳng khác gì một khách sạn hạng sang.

Khu vườn nhỏ đồng thời là lối đi bên hông trong thiết kế nhà hàng Đức Hạnh được tạo hình như một đoạn “resort mini”, nơi cây xanh được bố trí đối xứng, lối đá bước thanh thoát dẫn dắt khách vào không gian chính. Hàng tùng cao vút kết hợp thảm cây bụi và hoa nhẹ nhàng tạo nên cảm giác riêng tư, sang trọng và đầy thư thái. Không chỉ là lối đi phụ, khu vườn trở thành điểm nhấn cảnh quan giúp nhà hàng thêm phần đẳng cấp và cuốn hút ngay từ những bước chân đầu tiên.
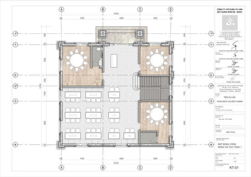
Bản vẽ mặt bằng tầng 1 và tầng 2 của hồ sơ kỹ thuật hé lộ cách bố trí công năng tối ưu, đáp ứng đúng mục tiêu vận hành của mô hình thiết kế nhà hàng tại Thái Nguyên.

Tầng 1 được thiết kế rộng rãi và mạch lạc:
Nhịp lưu thông trong không gian được tính toán nhằm tránh việc ùn tắc khi lượng khách tăng cao.

Nếu tầng 1 tạo không gian cộng đồng, tầng 2 lại là thế giới của sự riêng tư:
Sự phân tách tầng tạo nên lợi thế lớn cho vận hành và phân luồng khách.
Bí ẩn ít người biết phía sau thiết kế nhà hàng Đức Hạnh không chỉ nằm ở kiến trúc ấn tượng mà còn ở triết lý tân cổ điển tinh tế, khiến phong cách này luôn trở thành lựa chọn ưu ái của nhiều chủ đầu tư.

Từ ngoại thất đến nội thất, ánh sáng được xem như một phần vật liệu:

Không dùng họa tiết rườm rà, tổng thể công trình dựa vào hình khối, ánh sáng và vật liệu để tạo nên vẻ đẹp bền vững theo thời gian.


Những sắc màu này khiến nhà hàng vừa sang trọng, vừa gần gũi.


Sơn Hà Group mang đến lợi thế vượt trội cho mọi dự án nhà hàng:
Công trình thiết kế nhà hàng Đức Hạnh tại Thái Nguyên là minh chứng rõ ràng cho năng lực tạo nên những không gian ẩm thực ấn tượng và hiệu quả.

Từ bản vẽ mặt bằng đến phối cảnh 3D, dễ thấy rằng dự án thiết kế nhà hàng Đức Hạnh là sự hòa quyện giữa sáng tạo, công năng và câu chuyện riêng của chủ đầu tư.

Công trình không chỉ là nơi phục vụ ẩm thực. Nó là điểm dừng chân, là dấu ấn của khu công nghiệp và là niềm tự hào của người sở hữu.
Nếu bạn cũng đang tìm kiếm đơn vị thiết kế nhà hàng chuyên nghiệp, Sơn Hà Group luôn sẵn sàng biến ý tưởng thành hiện thực, tạo nên những công trình mang dấu ấn riêng không thể trộn lẫn.
Ảnh khác
Bình luận