Khám phá tuyệt tác thiết kế nhà hàng tiệc cưới Sao Đỏ Palace do Sơn Hà Group thực hiện. Phong cách hiện đại, kiến trúc độc đáo với mặt dựng kim loại đục lỗ, ánh sáng trình diễn rực rỡ cùng không gian hội trường sang trọng. Bài viết phân tích chi tiết ý tưởng kiến trúc và giải pháp thiết kế tối ưu cho trung tâm tiệc cưới cao cấp.
NỘI DUNG CHÍNH
Trong bối cảnh Chí Linh - Hải Phòng phát triển mạnh mẽ về dịch vụ và hạ tầng sau sát nhập, Sao Đỏ Palace xuất hiện như một dấu ấn kiến trúc mới mẻ. Công trình được Sơn Hà Group thiết kế với tinh thần cách tân, khơi gợi cảm xúc tự hào của một trung tâm tiệc cưới sang trọng, tinh tế và khác biệt.
[su_thong_tin_chu_dau_tu chu_dau_tu="CÔNG TY CP CÔNG NGHIỆP DỊCH VỤ CAO CƯỜNG" dia_chi=" tinh_thanh="Chí Linh" ten_tinh_thanh="Hải Phòng" link_tinh_thanh="https://shac.vn/tag/hai-phong" loai_hinh="Trung tâm tiệc cưới khách sạn" link_loai_hinh="https://shac.vn/thiet-ke-nha-hang-tiec-cuoi" so_tang="2 tầng 1 hầm 1 áp mái" link_so_tang="https://shac.vn/tag/3-tang" mat_tien="4,8m" link_mat_tien="https://shac.vn/19.5m" dien_tich="380.2 m2" cong_nang='' nam_thuc_hien="2025"]
Từ cái nhìn đầu tiên, công trình mang đến cảm giác về một khối hộp kiến trúc vững chãi nhưng mềm mại trong ngôn ngữ thiết kế. Đây không chỉ là một nhà hàng, mà là nơi lưu giữ những khoảnh khắc trọng đại - một sân khấu hoàn hảo của các lễ cưới đẳng cấp.

Điểm nổi bật nhất của thiết kế nhà hàng tiệc cưới Sao Đỏ Palace chính là mặt dựng bằng tấm kim loại đục lỗ Perforated Panel. Hệ mặt dựng này bao bọc toàn bộ tầng khối trên, tạo nên hiệu ứng hình khối mạnh mẽ nhưng cũng đầy nghệ thuật.


Thiết kế nhà hàng tiệc cưới không chỉ dừng lại ở việc đẹp vào ban ngày. Bí mật làm nên sự khác biệt của Sao Đỏ Palace nằm ở hệ thống chiếu sáng ẩn được bố trí bên trong lớp vỏ kim loại.
Khi bật sáng:
Đây chính là ngôn ngữ kể chuyện bằng ánh sáng - yếu tố mà Sơn Hà Group luôn hướng đến trong các thiết kế nhà hàng và trung tâm sự kiện.

Tầng 1 được thiết kế với không gian rộng mở, sử dụng hệ tường kính sát sàn để:
Khu vực sảnh được hoàn thiện bằng đá tự nhiên kết hợp đường viền kim loại mạ đồng, mang đậm tinh thần hiện đại, tối giản nhưng vẫn đẳng cấp.
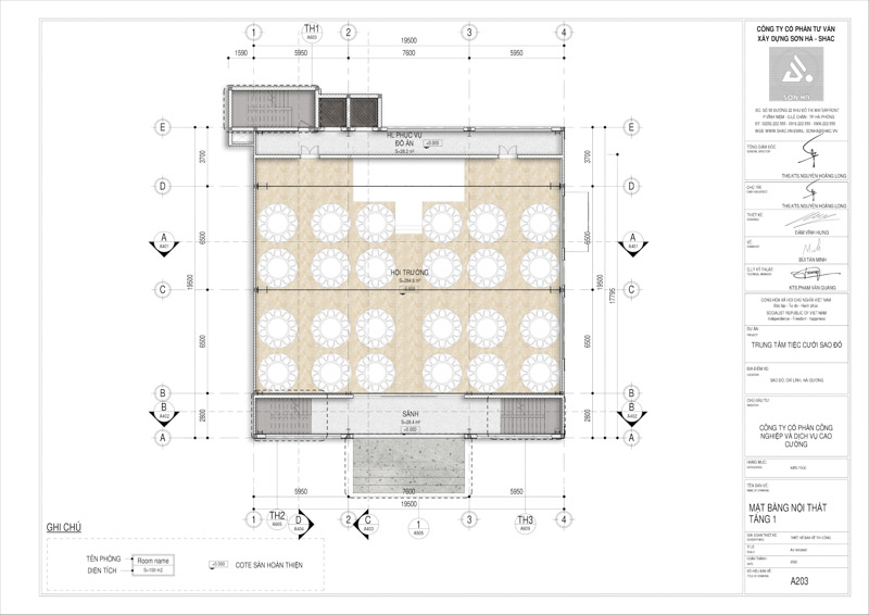
Phòng hội trường cưới tại tầng 1 có diện tích 284,8 m², đáp ứng linh hoạt nhiều loại hình tiệc cưới, được bố trí khoa học cùng khu phục vụ đồ ăn và hệ thống WC thuận tiện cho khách.

Tầng 2 tiếp tục gây ấn tượng với hội trường cưới có diện tích 273,4 m², mang đến không gian thoải mái cho các sự kiện lớn.
Khu vực phục vụ đồ ăn được bố trí sát hành lang, giúp luồng di chuyển của khách và nhân viên trở nên mượt mà. Hệ thống WC tách biệt và thiết kế tinh tế, đảm bảo tiện nghi tối đa cho mọi khách mời.
Với cách bố trí thông minh, tầng 2 kết hợp hài hòa giữa thẩm mỹ và vận hành, mang đến trải nghiệm tiệc cưới thế hệ mới - vừa đẹp, vừa thuận tiện.

Tầng hầm với diện tích hơn 200 m² giúp:

Sơn Hà Group áp dụng triết lý "Ít mà nhiều", tập trung vào:
Công trình tuy đơn giản về hình thức nhưng giàu chiều sâu nghệ thuật, đúng tinh thần của các thiết kế nhà hàng cao cấp.
Bên trong nội thất, tinh thần hiện đại tiếp tục được duy trì:
Với triết lý "không gian là cảm xúc", mỗi khu vực trong Sao Đỏ Palace đều được thiết kế để trở thành phông nền hoàn hảo cho những khoảnh khắc đáng nhớ.

Nằm trong tổng thể kiến trúc hiện đại của Sao Đỏ Palace, không gian sảnh tiệc tầng 1 là một minh chứng xuất sắc cho tư duy thiết kế nhà hàng tiệc cưới theo phong cách Modern Luxury, nơi công năng và thẩm mỹ hòa quyện hoàn hảo. Điểm nhấn thị giác ấn tượng nhất chính là hệ trần thạch cao giật cấp được xử lý tinh tế, kết hợp cùng hệ thống đèn thả trần mang ngôn ngữ điêu khắc độc đáo, tạo nên hiệu ứng ánh sáng lung linh và chiều sâu cho không gian.

Các kiến trúc sư đã khéo léo "làm mềm" hệ cột kết cấu chịu lực bằng giải pháp ốp vách gỗ vân sáng màu, tích hợp đèn tường LED profile bo cong chạy dọc thân cột, vừa gia tăng tính thẩm mỹ vừa bổ sung ánh sáng phương vị (ambient lighting).
Toàn bộ diện tích sàn được trải thảm cao cấp với họa tiết khổ lớn, không chỉ giúp tiêu âm hiệu quả cho các sự kiện đông người mà còn tôn lên vẻ quyền quý. Với tone màu chủ đạo là Beige - Gold (Vàng kem - Vàng đồng) kết hợp cùng nội thất bàn ghế Banquet tiêu chuẩn 5 sao, không gian toát lên sự ấm cúng, trang nhã nhưng không kém phần lộng lẫy.

Bước lên tầng 2, ngôn ngữ thiết kế nhà hàng tiệc cưới tại Sao Đỏ Palace chuyển mình sang một sắc thái lãng mạn và bay bổng hơn, tựa như một khu vườn địa đàng trong nhà. Sự khác biệt rõ nét nhất nằm ở hệ thống thảm trải sàn cao cấp với họa tiết Floral (hoa văn thực vật) trên nền xanh ngọc bích nhã nhặn, tạo nên sự tương phản đầy nghệ thuật với tone màu gỗ ấm áp của các mảng tường và cột.

Hệ thống trần tại đây tiếp tục sử dụng kỹ thuật giật cấp đa tầng nhưng được tối giản hóa để nhường "sân khấu" cho dàn đèn chùm pha lê thả có thiết kế mô phỏng những giọt nước đang rơi, tạo hiệu ứng khúc xạ ánh sáng lộng lẫy. Khu vực sân khấu trung tâm được trang bị màn hình LED khổ lớn, hai bên cánh gà sử dụng vách ngăn CNC họa tiết hình học kết hợp vật liệu gương kính (mirror cladding), giúp mở rộng thị giác và tăng chiều sâu cho hội trường.

Cách bố trí mặt bằng tầng 2 tuân thủ nguyên tắc đối xứng tâm nghiêm ngặt, dồn sự tập trung vào lối đi chính dẫn lên sân khấu. Nội thất bàn tiệc tròn được trang bị mâm xoay kính cường lực, ghế Tiffany bọc nệm êm ái thắt nơ vàng đồng, tất cả tạo nên một không gian tiệc cưới vừa sang trọng chuẩn mực, vừa phóng khoáng, hiện đại.


Sao Đỏ Palace là minh chứng cho thấy để tạo ra một trung tâm tiệc cưới thành công, không chỉ cần diện tích lớn hay nội thất đẹp, mà còn phải:
Sản phẩm cuối cùng không chỉ là một công trình, mà còn là một biểu tượng, một điểm đến.
Với kinh nghiệm hàng nghìn công trình trên toàn quốc, Sơn Hà Group luôn dẫn đầu trong lĩnh vực thiết kế nhà hàng và trung tâm tiệc cưới. Chúng tôi mang đến:
Sao Đỏ Palace chỉ là một trong những minh chứng nổi bật cho năng lực sáng tạo và tâm huyết trong từng dự án.

Sự kết hợp của kiến trúc táo bạo, vật liệu hiện đại và hiệu ứng ánh sáng đã đem đến cho Sao Đỏ Palace một diện mạo không thể trộn lẫn. Đây là mẫu mực mới cho các thiết kế nhà hàng tiệc cưới trong tương lai - nơi kiến trúc không chỉ để ngắm mà còn để cảm nhận.
Ảnh khác