Nhà ống Hiện đại 4 tầng là thiết kế phổ biến và phù hợp cho các khu vực dân cư phát triển nhanh chóng. Bất chấp diện tích hạn chế, với thiết kế đơn giản, tinh tế, nhà ống Hiện đại 4 tầng đã trở thành một mẫu thiết kế nhà mơ ước của nhiều gia đình.
NỘI DUNG CHÍNH
Nhà ống Hiện đại 4 tầng được thiết kế tập trung vào công năng, đảm bảo các tiện ích cần có cho nhu cầu sinh hoạt của gia đình gia chủ. Ngôi nhà được thiết kế để luôn nhận được lượng ánh sáng cần thiết và thông gió hiệu quả.

Với mong muốn sở hữu một không gian sống tiện nghi, đủ đầy cho gia đình, gia chủ đã tìm đến chúng tôi để biến mong muốn đó trở thành sự thật. Với diện tích đất xây dựng chỉ rộng 64m2, chúng tôi đã nghiên cứu và mang đến cho chị giải pháp thiết kế sau đây.
Ngôi nhà sử dụng các chất liệu hiện đại quen thuộc như kính, gỗ, đá,... để tăng thêm sự sang trọng, phóng khoáng trên mặt tiền. Với các chất liệu này, chúng tôi tiếp tục sử dụng các nét thẳng, gọn gàng để tạo ra một thiết kế đơn giản, tinh tế.
Gam màu trắng và nâu sáng góp phần tạo ra cảm giác rộng rãi, thoáng mát cho ngôi nhà.

Hệ thống chiếu sáng và cây xanh được bố trí khoa học nhằm tạo điểm nhấn thu hút cho mặt tiền, đồng thời, giúp điều hòa không khí của không gian sống trong nhà ống Hiện tại 4 tầng.

Được thiết kế tập trung vào công năng, mỗi khu vực bên trong đều được tính toán kỹ lưỡng để bản thiết kế được tạo ra là một bản thiết kế phù hợp, hài hòa về cả công năng, thẩm mỹ và phong thủy cho ngôi nhà.
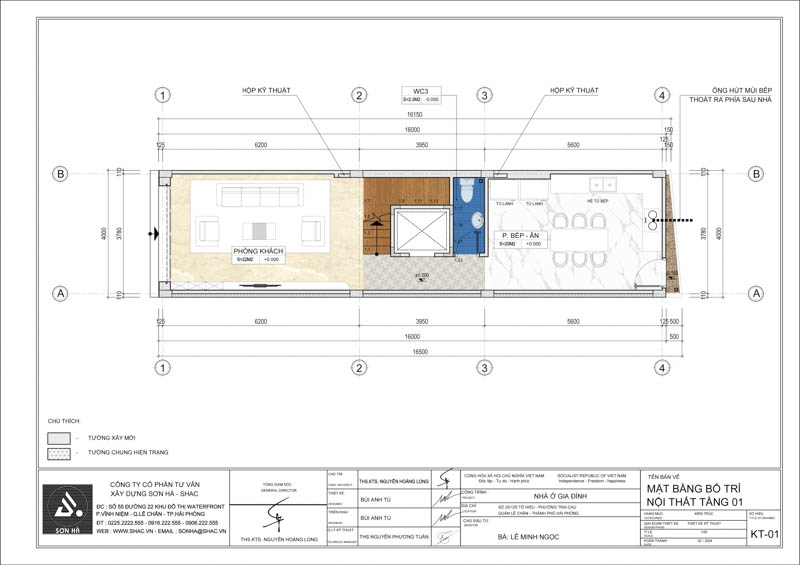
Không gian tầng 1 được dành cho các không gian chung như phòng khách, phòng bếp ăn của gia đình.


Tầng 2 và tầng 3 được thiết kế để đặt các không gian riêng tư là phòng ngủ của các thành viên trong gia đình tại đây. Yếu tố thông gió, lấy sáng được chú trọng trong thiết kế của mỗi căn phòng tại đây.

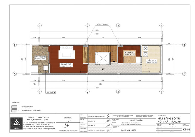
Khu vực tầng 4 được dành cho các công năng sử dụng không thường xuyên như Phòng thờ, Phòng thay đồ, Sân giặt phơi. Ngoài ra, tại tầng 4 còn có khu vực sân thượng để cả nhà thư giãn và nghỉ ngơi trong ngày.
Phong cách Hiện đại là phong cách hướng tới sự đơn giản, gọn gàng và tinh tế. Phong cách này cũng chú trọng đến việc cân bằng các yếu tố trong không gian sống, bên cạnh các yếu tố như sự sang trọng, tiện nghi và tinh tế.
Hiện nay, có rất nhiều gia chủ yêu thích và lựa chọn phong cách thiết kế này cho công trình nhà ở của mình. Đây là phong cách được nhiều gia chủ lựa chọn để thể hiện cá tính và gu thẩm mỹ của bản thân vào thiết kế.
Thời gian để hoàn thiện một nhà ống Hiện đại phụ thuộc vào rất nhiều yếu tố như quy mô và diện tích xây dựng, kiến trúc và phong cách thiết kế, tình trạng nền đất, điều kiện thời tiết,…
Thông thường, thời gian xây một nhà ống Hiện đại dao dộng từ 4 tháng đến 6 tháng. Tuy nhiên, cũng có trường hợp thời gian xây dựng ngắn hơn hoặc lâu hơn do các yếu tố khác tác động.
Để được tư vấn cụ thể hơn về thời gian xây dựng và các vấn đề xoay quanh nhà ống Hiện đại, bạn hãy liên hệ với Sơn Hà Group qua Fanpage, Website hoặc hotline 0906.222.555.

Để đản bảo tính thẩm mỹ và công năng sử dụng của nhà ống, thiết kế kiến trúc và nội thất cần đảm bảo sự hài hòa, thống nhất giữa các không gian bên trong và bên ngoài ngôi nhà.
Bạn đang tìm các thiết kế phù hợp cho nhà ống của mình, hãy liên hệ với Sơn Hà Group để được tư vấn và hỗ trợ tốt nhất.
Chi phí xây dựng một nhà ống Hiện đại phụ thuộc vào nhiều yếu tố. Có thể kể đến như: Địa điểm xây dựng, kích thước biệt thự, thiết kế, vật liệu xây dựng và đặc biệt là nhu cầu cụ thể của gia chủ. Để biết chi tiết về chi phí đầu tư cho một nhà ống Hiện đại, quý khách hãy liên hệ với Sơn Hà Group để được tư vấn và báo giá chi tiết nhất.

Việc chuẩn bị cho quá trình quản lý và bảo trì nhà ống Hiện đại thường được Sơn Hà Group tư vấn và thực hiện trong quá trình thiết kế cho các khách hàng. Kiến trúc sư sẽ tư vấn những lựa chọn phù hợp, nhằm giúp khách hàng đơn giản hóa quá trình chăm sóc công trình của mình. Quá trình thi công kỹ lưỡng sẽ giúp các gia chủ hạn chế được các rủi ro, đảm bảo giá trị thẩm mỹ lẫn tuổi thọ kết cấu của nhà ống.
Sơn Hà Group tự hào được là đơn vị đồng hành cùng bạn xây nên không gian sống mơ ước qua các dịch vụ: tư vấn phương án thi công, phong cách thiết kế hợp lý và chọn vật liệu phù hợp nhất với nhu cầu.
Để sở hữu một mẫu nhà ống Hiện đại ưng ý, các gia chủ cần chú ý các đặc điểm sau trong quá trình thiết kế và xây dựng:
Với đội ngũ kiến trúc sư dày dặn kinh nghiệm và có khiếu thẩm mỹ cao, Sơn Hà sẽ hỗ trợ khách hàng thiết kế nội thất và tư vấn lựa chọn nội thất phù hợp. Sơn Hà đảm bảo sẽ giúp khách hàng chọn được những mẫu nội thất phù hợp với không gian và cá tính của mình.

Nhà ống sau khi hoàn thiện có thể đẹp như phối cảnh 3D hay không phụ thuộc vào các yếu tố như:
Trên thực tế, quá trình thi công khó tránh được các vấn đề phát sinh ảnh hưởng tới chất lượng công trình. Tuy nhiên, nhà ống thi công thực tế vẫn có thể đẹp như phối cảnh 3D khi:
Để sở hữu một nhà ống Hiện đại 4 tầng sang trọng, tinh tế và phù hợp với nhu cầu sử dụng của gia đình, bạn cần chọn cho mình một đơn vị thiết kế, thi công uy tín, chất lượng.

Là đơn vị có hơn 20 năm kinh nghiệm thiết kế, thi công các mẫu nhà ống Hiện đại cho khách hàng trong cả nước, Sơn Hà Group tự hào được đồng hành và cùng bạn tạo ra một không gian sống như ý với:
Trên đây là toàn bộ phương án thiết kế và thi công cho nhà ống Hiện đại 4 tầng được chúng tôi thực hiện cho gia chủ tại Hải Dương. Bạn đang tìm ý tưởng thiết kế phù hợp cho không gian sống của mình, hãy liên hệ với Sơn Hà Group để chúng tôi hỗ trợ và biến ngôi nhà mơ ước của bạn thành hiện thực.
Ảnh khác
Bình luận