Nhà của Hoa là nhà ống kinh doanh 4 tầng sở hữu thiết kế xu hướng được yêu thích nhất với sự tối giản và Hiện đại. Bên trong nhà, các không gian được sắp xếp khoa học để đạt được tính tiện nghi, sự cân bằng trong thiết kế.
NỘI DUNG CHÍNH
' nam_thuc_hien="2024"]
Với vị trí xây dựng nằm ở lô đất góc, nhà ống kinh doanh 4 tầng sở hữu vị trí đắc địa, vô cùng phù hợp và thuận lợi cho mục đích kinh doanh của gia đình.

Ở mặt ngoài, các hình khối cơ bản, vuông vức kết hợp với chất gỗ trên mặt tiền tạo cho ngôi nhà một diện mạo vững chắc, tinh tế mà gọn gàng.
Nhà của Hoa sở hữu những đặc điểm nổi bật của một kiến trúc Hiện đại với màu sắc trung tính và thiết kế tối ưu, tập trung vào công năng. Đây là thiết kế cực kỳ phù hợp với đặc tính của cửa hàng kinh doanh máy văn phòng tại tầng 1 của ngôi nhà.

Giải pháp thông gió hiện diện trên mặt tiền qua các ô cửa kính lớn, hàng cây xanh rủ xuống trên mặt tiền và các khoảng sân rộng được đặt bên trong nhà.
Nhờ cách phối hợp hài hòa các yếu tố trong kiến trúc, Nhà của Hoa đã đạt được sự cân bằng ở mặt ngoài của thiết kế.
Sự tiện nghi là yếu tố được quan tâm hàng đầu trong quá trình thiết kế nhà ống kinh doanh 4 tầng Hiện đại. Hệ mái ở các tầng được đua ra 2,5m để tạo một góc ban công cho cả nhà thư giãn, đồng thời, góp phần làm cản bớt ánh nắng vào trong nhà.

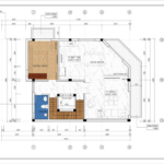
Các công năng sinh hoạt của gia đình được tách biệt rõ ràng với khu vực kinh doanh. Bên trong nhà của Hoa, một khoảng sân vườn được đặt kế bên phòng bếp dưới tầng 1 và trên tầng thượng.


Sinh hoạt của gia đình nằm tập trung tại tầng 2 và tầng 3. Phòng ngủ master được đặt trên tầng 3 mang đến cho gia chủ tầm nhìn thoáng đãng và không gian nghỉ ngơi tiện nghi nhất. Phòng ngủ ở tầng 1 được thiết kế dành cho ông bà. Các phòng ngủ còn lại dành cho các bé.

Với gia đình có đến 3 con nhỏ, khoảng sân vườn rộng rãi trên tầng thượng là nơi tuyệt vời để con trẻ chơi đùa và thư giãn cùng gia đình.
Có nhiều loại hình kinh doanh phù hợp cho nh30à ống có thể kể đến như: cửa hàng bán lẻ, quán cafe, nhà hàng, spa,…
Lưu ý, khi kinh doanh tại nhà ống, gia chủ cần xin giấy phép kinh doanh theo quy định pháp luật, đảm bảo an ninh trật tự cho khu vực kinh doanh và giữ gìn vệ sinh chung, không gây ảnh hưởng đến dân cư xung quanh.

Thời gian để hoàn thiện một nhà ống kết hợp kinh doanh phụ thuộc vào rất nhiều yếu tố như quy mô và diện tích xây dựng, kiến trúc và phong cách thiết kế, tình trạng nền đất, điều kiện thời tiết,…
Thông thường, thời gian xây một nhà ống kết hợp kinh doanh dao dộng từ 4 tháng đến 8 tháng. Tuy nhiên, cũng có trường hợp thời gian xây dựng nhanh hơn hoặc lâu hơn do các yếu tố khác tác động.
Để được tư vấn cụ thể hơn về thời gian xây dựng và các vấn đề xoay quanh nhà ống kết hợp kinh doanh, bạn hãy liên hệ với Sơn Hà Group qua Fanpage, Website hoặc hotline 0906.222.555.
Có rất nhiều phong cách thiết kế phù hợp cho nhà ống kết hợp kinh doanh. Tùy theo mục đích, nhu cầu sử dụng nhà ống và sở thích của gia chủ mà chúng ta sẽ có những phong cách phù hợp như phong cách hiện đại, phong cách Tân cổ điển, phong cách Industrial,…

Chi phí xây dựng một nhà ống kết hợp phụ thuộc vào nhiều yếu tố. Có thể kể đến như: Địa điểm xây dựng, kích thước biệt thự, thiết kế, vật liệu xây dựng và đặc biệt là nhu cầu cụ thể của gia chủ. Để biết chi tiết về chi phí đầu tư cho một nhà ống kết hợp kinh doanh, quý khách hãy liên hệ với Sơn Hà Group để được tư vấn và báo giá chi tiết nhất.
Để sở hữu một mẫu nhà ống kết hợp kinh doanh ưng ý, gia chủ cần chú ý các đặc điểm sau trong quá trình thiết kế và xây dựng:
Với đội ngũ kiến trúc sư dày dặn kinh nghiệm và có khiếu thẩm mỹ cao, Sơn Hà Group luôn sẵn sàng hỗ trợ khách hàng thiết kế nội thất và tư vấn lựa chọn nội thất phù hợp cho không gian, nhu cầu sử dụng và ngân sách hiện có của gia chủ.
Trên đây là toàn bộ phương án thiết kế và thi công cho nhà ống kinh doanh 4 tầng được chúng tôi thực hiện cho gia chủ tại Quảng Ninh. Bạn đang tìm ý tưởng thiết kế phù hợp cho không gian sống của mình, hãy liên hệ với Sơn Hà Group để chúng tôi hỗ trợ và biến ngôi nhà mơ ước của bạn thành hiện thực.
Ảnh khác