Lấy cảm hứng từ những ô ZigZag tinh nghịch, các kiến trúc sư đã đưa ra ý tưởng cải tạo ngôi nhà phố mang dáng dấp vững chãi với các ô cửa xen kẽ theo một đường ZigZag thú vị, giúp ngôi nhà luôn thoáng mát và tràn ngập ánh sáng tự nhiên. Ngôi nhà là nơi trú ẩn của một gia đình gồm bố mẹ và 4 con nhỏ.
NỘI DUNG CHÍNH
Ngôi nhà trước khi cải tạo là không gian sống kết hợp kinh doanh quán cà phê của gia đình. Với diện tích không lớn và thời gian xây dựng đã lâu, ngôi nhà đã sớm không còn phù hợp với nhu cầu sống của anh chị cũng như sự phát triển của các con.
Nằm ở một tuyến đường ven hồ tại Hà Nội, ngôi nhà là không gian sống lâu năm của anh chị chủ và các con với biết bao kỷ niệm. Tuy nhiên, như một xu hướng tất yếu của cuộc sống, khi các con ngày càng lớn khôn thì mong muốn về một ngôi nhà mới khang trang, thoải mái và tiện nghi của anh chị cũng lớn dần. Đó là lúc anh chị quyết định tìm đến chúng tôi để hiện thực hóa tổ ấm trong mơ của mình.

Sơn Hà thường có duyên làm việc với những gia đình có con nhỏ và ngôi nhà của anh chị chủ cũng không ngoại lệ.
Ngôi nhà nằm trên tuyến đường gần hồ tại Hà Nội. Vị trí này mang đến cho anh chị môi trường sống trong lành và một khung cảnh thiên nhiên tuyệt đẹp, giúp cải thiện tâm trạng và giảm stress hiệu quả.
Lấy cảm hứng từ thiết kế ZigZag có phần tinh nghịch, các kiến trúc sư đã mang đến ý tưởng thiết kế cuốn hút cho ngôi nhà mang dáng dấp vững chắc mà không kém phần cá tính. Vị trí ban công các tầng được đặt xen kẽ theo một đường ZigZag thú vị. Điều này giúp ngôi nhà có thể "hít thở" dễ dàng và luôn có đủ lượng ánh sáng cần thiết vào ban ngày.

Thiết kế này cũng là một bản tuyên ngôn được các kiến trúc sư sử dụng để thể hiện cá tính và phong cách sống của gia đình. Nơi mà mọi người luôn trân trọng sự kết nối giữa con người với thiên nhiên và tôn trọng bản sắc riêng của từng người.
Ý niệm về hạnh phúc là kim chỉ nam, dẫn dắt gia đình anh chị đến với mục đích lớn nhất, đó là tạo ra một không gian sống hiện đại, thoải mái, đáp ứng nhu cầu sống của gia đình và phù hợp với sự phát triển của các con.
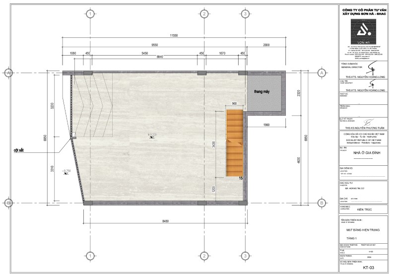
Ngôi nhà được cải tạo tăng thêm 1 tầng so với kiến trúc ban đầu gồm 5 tầng 1 tum, 1 tầng lửng và 1 tầng hầm.

Tầng hầm là không gian riêng tư để gia chủ lưu trữ rượu – một sở thích và cũng là một phần công việc của anh. Bên cạnh kho lưu trữ, tầng hầm còn có một phòng ngủ nhỏ của gia đình. Khi quyết định đặt phòng ngủ tại đây, đội ngũ thiết kế đã tính toán và bố trí không gian cẩn thận để đảm bảo khả năng thông gió và lấy sáng của tầng hầm.



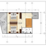
Để giúp việc học của các con được thuận lợi, anh chị chủ đã quyết định dành riêng một tầng để làm phòng học và phòng chơi cho các con. Không gian này được mong đợi sẽ là nơi hỗ trợ cho sự phát triển của các con.

Tầng 2 với không gian rộng rãi được dành để gia chủ đón tiếp khách khứa.

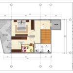
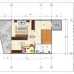
Các tầng phía trên được dành để làm không gian nghỉ ngơi của cả gia đình. Với vị trí nằm trong thành phố, việc đặt phòng ngủ ở các tầng phía trên sẽ giúp gia chủ có được không gian nghỉ ngơi yên tĩnh, dễ chịu và tầm nhìn thoáng đãng về phía hồ.



Phòng bếp ăn được đặt ở tầng trên cùng của ngôi nhà. Một vị trí hoàn hảo để gia đình dành thời gian thư giãn và tận hưởng không khí dễ chịu từ bên ngoài.

Việc thiết kế một mặt tiền ấn tượng cho nhà phố là một hạng mục nằm trong bản thiết kế tổng thể của ngôi nhà. Để có một thiết kế nhà phố đẹp, hiện đại và phù hợp với mong muốn và ngân sách xây dựng của gia đình, gia chủ nên làm việc với kiến trúc sư và đơn vị thiết kế giàu kinh nghiệm. Các đơn vị này sẽ giúp bạn lên ý tưởng, chọn được phong cách thiết kế phù hợp và đảm bảo công năng khoa học cho ngôi nhà.
Để chọn được một đơn vị thiết kế xây dựng uy tín, gia chủ nên chú ý đến vị thế và uy tín của đơn vị đó trên thị trường, số năm hoạt động trong nghề, chất lượng các công trình đã thực hiện và tìm hiểu các dịch vụ mà đơn vị này cung cấp xem có phù hợp với nhu cầu của gia đình hay không.

Là đơn vị có hơn 20 năm kinh nghiệm thiết kế, thi công các công trình nhà phố, nhà ở gia đình cho khách hàng trong cả nước, Sơn Hà Group tự hào là đơn vị đồng hành, cùng gia chủ tạo ra không gian sống như ý với cam kết:

Thiết kế mặt tiền với hình ZigZag là một ý tưởng sáng tạo và độc đáo, mang đến nhiều giá trị thẩm mỹ và công năng cho ngôi nhà phố ven hồ tại Hà Nội. Bên cạnh việc bố trí công năng khoa học bên trong nhà, việc tạo ra một mặt tiền ấn tượng là cách để chúng tôi giúp gia chủ thể hiện cá tính và phong cách sống của mình. Với sự tận tâm và chuyên nghiệp, Sơn Hà Group sẽ giúp bạn biến không gian sống mơ ước trở thành hiện thực.
Ảnh khác
Bình luận