Ngày đăng 03/24/2025
Ngày cập nhật 03/25/2025
5/5 - (1 bình chọn)

Với mong muốn kết hợp không gian sống và kinh doanh, gia chủ đã định hình thiết kế nhà phố 5 tầng như một "tháp ánh sáng" nổi bật mỗi khi màn đêm buông xuống.

1. Thông tin công trình

Thiết kế nhà phố 5 tầng – Tháp ánh sáng lung linh giữa lòng Hải Phòng 1
Thiết kế nhà phố 5 tầng – Tháp ánh sáng lung linh giữa lòng Hải Phòng 2
Thiết kế nhà phố 5 tầng – Tháp ánh sáng lung linh giữa lòng Hải Phòng 3
Thiết kế nhà phố 5 tầng – Tháp ánh sáng lung linh giữa lòng Hải Phòng 4
Thiết kế nhà phố 5 tầng – Tháp ánh sáng lung linh giữa lòng Hải Phòng 5
Thiết kế nhà phố 5 tầng – Tháp ánh sáng lung linh giữa lòng Hải Phòng 6
Thiết kế nhà phố 5 tầng – Tháp ánh sáng lung linh giữa lòng Hải Phòng 7
Thiết kế nhà phố 5 tầng – Tháp ánh sáng lung linh giữa lòng Hải Phòng 8
Thiết kế nhà phố 5 tầng – Tháp ánh sáng lung linh giữa lòng Hải Phòng 9
Thiết kế nhà phố 5 tầng – Tháp ánh sáng lung linh giữa lòng Hải Phòng 10
Mặt bằng tầng 1, 2 của nhà phố kinh doanh 5 tầng
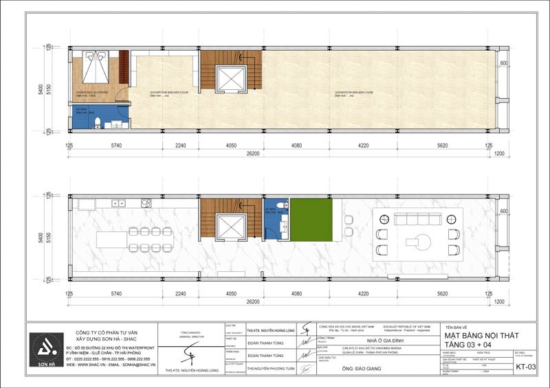
Mặt bằng tầng 3, 4 của nhà phố kinh doanh 135m2 tại Hải Phòng
Mặt bằng tầng 5, tầng tum của nhà phố kinh doanh 5 tầng 135m2
Thiết kế nhà phố 5 tầng – Tháp ánh sáng lung linh giữa lòng Hải Phòng 11
Thiết kế nhà phố 5 tầng – Tháp ánh sáng lung linh giữa lòng Hải Phòng 12
Thiết kế nhà phố 5 tầng – Tháp ánh sáng lung linh giữa lòng Hải Phòng 13
Thiết kế nhà phố 5 tầng – Tháp ánh sáng lung linh giữa lòng Hải Phòng 14
Thiết kế nhà phố 5 tầng – Tháp ánh sáng lung linh giữa lòng Hải Phòng 15
Thiết kế nhà phố 5 tầng – Tháp ánh sáng lung linh giữa lòng Hải Phòng 16
Thiết kế nhà phố 5 tầng – Tháp ánh sáng lung linh giữa lòng Hải Phòng 17
Thiết kế nhà phố 5 tầng – Tháp ánh sáng lung linh giữa lòng Hải Phòng 18
Thiết kế nhà phố 5 tầng – Tháp ánh sáng lung linh giữa lòng Hải Phòng 19
Thiết kế nhà phố 5 tầng – Tháp ánh sáng lung linh giữa lòng Hải Phòng 20
Mặt bằng tầng 1, 2 của nhà phố kinh doanh 5 tầng
Mặt bằng tầng 3, 4 của nhà phố kinh doanh 135m2 tại Hải Phòng
Mặt bằng tầng 5, tầng tum của nhà phố kinh doanh 5 tầng 135m2
Chủ đầu tư: Ông Đào Hoàng Giang
Địa chỉ: , TP. Hải Phòng
Loại hình: Nhà ống kinh doanh Hiện đại
Đ/v thực hiện: Sơn Hà Group (#SHAC)
Số Tầng: 5 tầng
Mặt tiền: 5,4m
Tổng diện tích: 135m2
Năm thực hiện: 2024
Công năng:

  • Tầng 1,2: Khu vực kinh doanh
  • Tầng 3: Khu vực kinh doanh, 01 phòng ngủ dự phòng
  • Tầng 4: Phòng khách, Phòng bếp-ăn
  • Tầng 5: 03 phòng ngủ
  • Tầng tum: Phòng thờ, Phòng kho, Sân vườn, Sân phơi

2. Thiết kế nhà phố 5 tầng ấn tượng – Nâng tầm không gian kinh doanh

Thiết kế nhà phố 5 tầng ấn tượng – Nâng tầm không gian kinh doanh
Thiết kế nhà phố 5 tầng ấn tượng – Nâng tầm không gian kinh doanh

Trên diện tích 135m² với chiều dài 26m, ngôi nhà được thiết kế để tối ưu công năng, đáp ứng đồng thời nhu cầu kinh doanh và sinh hoạt cho gia đình 6 thành viên. Mặt tiền được chăm chút kỹ lưỡng với hệ thống đèn LED kết hợp cùng các tấm Alu dập CNC họa tiết 3D tinh xảo, không chỉ nâng cao giá trị thẩm mỹ mà còn tạo hiệu ứng ánh sáng ấn tượng vào ban đêm, mang đến vẻ đẹp hiện đại và sinh động cho không gian.

Kiến trúc sư đã lựa chọn những vật liệu cao cấp để tạo nên vẻ ngoài thanh lịch nhưng vẫn bền bỉ trước điều kiện thời tiết khắc nghiệt. Mặt tiền không chỉ là bộ mặt của cửa hàng kinh doanh mà còn là điểm nhấn thể hiện sự sáng tạo trong cách ứng dụng ánh sáng vào kiến trúc đô thị.

Mặt tiền được chăm chút kỹ lưỡng với hệ thống đèn LED kết hợp cùng các tấm Alu dập CNC họa tiết 3D tinh xảo
Mặt tiền được chăm chút kỹ lưỡng với hệ thống đèn LED kết hợp cùng các tấm Alu dập CNC họa tiết 3D tinh xảo

3. Bố trí không gian thông minh và tối ưu

Với mục tiêu tạo nên sự hài hòa giữa công việc và cuộc sống, ngôi nhà được chia thành hai khu vực chính: khu vực kinh doanh nằm ở 3 tầng dưới, trong khi 3 tầng trên cùng là không gian sinh hoạt riêng của gia đình.

  • Tầng 1 và 2: Showroom trưng bày và kinh doanh đèn trang trí với không gian rộng rãi, thiết kế mở, giúp khách hàng dễ dàng chiêm ngưỡng các sản phẩm. Hệ thống chiếu sáng được thiết kế đặc biệt để làm nổi bật từng mẫu đèn, tạo hiệu ứng thị giác ấn tượng.
Mặt bằng tầng 1, 2 của nhà phố kinh doanh 5 tầng
Mặt bằng tầng 1, 2 của nhà phố kinh doanh 5 tầng
  • Tầng 3: Ngoài không gian kinh doanh, nơi đây còn bố trí một phòng ngủ dự phòng, dành cho nhân viên hoặc khách ghé thăm.
Mặt bằng tầng 3, 4 của nhà phố kinh doanh 135m2 tại Hải Phòng
Mặt bằng tầng 3, 4 của nhà phố kinh doanh 135m2 tại Hải Phòng
  • Tầng 4: Không gian sinh hoạt chính của gia đình với phòng khách rộng rãi, phòng bếp - ăn liên thông giúp tối đa hóa diện tích và tạo cảm giác ấm cúng.
  • Tầng 5: Ba phòng ngủ được thiết kế tinh tế, đảm bảo sự riêng tư và tiện nghi cho từng thành viên trong gia đình.
Mặt bằng tầng 5, tầng tum của nhà phố kinh doanh 5 tầng 135m2
Mặt bằng tầng 5, tầng tum của nhà phố kinh doanh 5 tầng 135m2
  • Tầng tum: Không gian xanh mát với sân vườn, khu vực thư giãn, phòng thờ trang nghiêm và sân phơi rộng rãi.

Thiết kế nhà phố 5 tầng với giếng trời và hệ thống cửa kính lớn giúp ánh sáng tự nhiên tràn ngập không gian, tạo sự thông thoáng và tiết kiệm năng lượng. Ngoài ra, cây xanh được bố trí khéo léo ở ban công và sân thượng, giúp điều hòa không khí và mang lại cảm giác thư thái.

4. Giải pháp kiến trúc cho thiết kế nhà phố 5 tầng vừa ở vừa kinh doanh

Chủ nhà đặc biệt quan tâm đến việc lựa chọn phong cách thiết kế phù hợp với công việc kinh doanh. Sau khi tham khảo nhiều phương án, phong cách hiện đại với đường nét tối giản, tinh tế nhưng vẫn nổi bật đã được lựa chọn.

Thiết kế nhà phố 5 tầng phù hợp với ngành nghề kinh doanh
Thiết kế nhà phố 5 tầng phù hợp với ngành nghề kinh doanh

Một số điểm nhấn quan trọng trong thiết kế:

  • Tương thích với ngành nghề kinh doanh: Hệ thống đèn trang trí không chỉ là sản phẩm trưng bày mà còn trở thành một phần của thiết kế tổng thể, giúp quảng bá thương hiệu hiệu quả.
  • Tạo không gian mở: Tối ưu hóa diện tích bằng cách sử dụng nội thất thông minh, hạn chế tường ngăn nhằm tạo sự kết nối giữa các khu vực.
  • Đảm bảo sự riêng tư: Việc phân chia không gian hợp lý giúp khu vực kinh doanh và sinh hoạt không bị ảnh hưởng lẫn nhau.
Giải pháp kiến trúc cho thiết kế nhà phố 5 tầng vừa ở vừa kinh doanh
Giải pháp kiến trúc cho thiết kế nhà phố 5 tầng vừa ở vừa kinh doanh

Bên cạnh thiết kế Hiện đại, cảnh quan xanh được thiết kế tối ưu ở phía trước mặt tiền và tầng thượng. Đây là không gian tuyệt vời để con trẻ vui chơi và dành thời gian bên gia đình. Khoảng không này còn là không gian lý tưởng để chủ nhà tổ chức các buổi tiệc ngoài trời với bạn bè và người thân.

5. Những câu hỏi thường gặp khi thiết kế nhà phố 5 tầng kinh doanh

5.1 Chọn mẫu thiết kế mặt tiền như thế nào để thu hút khách hàng?

  • Sử dụng hệ thống chiếu sáng ấn tượng, kết hợp giữa đèn LED và vật liệu phản quang.
  • Lựa chọn phong cách thiết kế nhà phố 5 tầng hiện đại, phù hợp với xu hướng kiến trúc đô thị.
  • Đảm bảo tính khoa học, tối ưu công năng sử dụng.

5.2 Nhà phố kinh doanh nên áp dụng phong cách thiết kế nào?

  • Hiện đại: Đơn giản, tinh tế, đề cao công năng.
  • Tân cổ điển: Kết hợp giữa vẻ đẹp cổ điển và sự tối giản hiện đại.
  • Công nghiệp: Sử dụng vật liệu thô mộc như bê tông, kim loại, kính.

5.3 Chi phí thiết kế nhà phố kinh doanh 5 tầng có đắt không?

  • Giá thiết kế nhà phố 5 tầng phụ thuộc vào diện tích, vị trí, phong cách thiết kế.
  • Gia chủ nên tham khảo báo giá từ các đơn vị thiết kế uy tín hoặc chọn dịch vụ xây nhà trọn gói của Sơn Hà Group để có sự chuẩn bị tài chính phù hợp.

5.4 Làm sao để đảm bảo sự riêng tư cho gia đình trong nhà phố kinh doanh?

  • Sử dụng hệ thống cửa cách âm, rèm cửa dày để hạn chế tiếng ồn.
  • Phân tách khu vực kinh doanh và sinh hoạt bằng cầu thang riêng hoặc vách ngăn thông minh.
  • Tận dụng cây xanh để tạo màn chắn tự nhiên, tăng sự riêng tư.

5.5 Thiết kế nhà phố 5 tầng kinh doanh khi thi công thực tế có thể đẹp như phối cảnh 3D không?

Thiết kế nhà phố 5 tầng – Tháp ánh sáng lung linh giữa lòng Hải Phòng
Thiết kế nhà phố 5 tầng – Tháp ánh sáng lung linh giữa lòng Hải Phòng

Nhà phố sau khi hoàn thiện có thể đẹp như phối cảnh 3D hay không phụ thuộc vào các yếu tố như:

  • Chất lượng thi công
  • Điều kiện thi công
  • Vật liệu hoàn thiện

Trên thực tế, quá trình thi công khó tránh được các vấn đề phát sinh ảnh hưởng tới chất lượng công trình. Tuy nhiên, các mẫu thiết kế nhà phố 5 tầng kinh doanh đẹp của Sơn Hà Group khi thi công thực tế vẫn có thể đẹp như phối cảnh 3D khi:

  • Quá trình thi công được giám sát chặt chẽ
  • Phương án thiết kế và thi công được thống nhất ngay từ đầu
  • Đơn vị thiết kế và thi công uy tín, có kinh nghiệm lâu năm
  • Vật liệu hoàn thiện được lựa chọn kỹ lưỡng, tỉ mỉ theo tư vấn của kiến trúc sư. Đặc biệt, với một nhà phố kinh doanh được thiết kế theo phong cách Hiện đại, vật liệu chính là chìa khóa giúp ngôi nhà sở hữu vẻ đẹp hoàn hảo như phối cảnh 3D.

6. Kết luận

Thiết kế nhà phố 5 tầng tại Hải Phòng không chỉ là nơi ở mà còn là không gian kinh doanh đầy sáng tạo, phản ánh gu thẩm mỹ và tư duy của gia chủ. Với ý tưởng biến ngôi nhà thành một "tháp ánh sáng" lung linh mỗi tối, công trình này không chỉ thu hút khách hàng mà còn trở thành điểm nhấn kiến trúc độc đáo giữa lòng thành phố.

Thiết kế nhà phố 5 tầng – Tháp ánh sáng lung linh giữa lòng Hải Phòng
Thiết kế nhà phố 5 tầng – Tháp ánh sáng lung linh giữa lòng Hải Phòng

Đây là một minh chứng rõ ràng về sự kết hợp hoàn hảo giữa công năng và nghệ thuật trong thiết kế nhà phố kinh doanh 5 tầng hiện đại.

5/5 - (1 bình chọn)
119Lượt xem

Xem thêm: Hồ sơ - Thiết kế nhà ống Hồ sơ - Thiết kế nhà ống hiện đại Thiết kế nhà phố 5 tầng

YÊU CẦU TƯ VẤN
Nhận ưu đãi & tư vấn
🎁 GIẢM NGAY 50% phí thiết kế khi thi công trọn gói 🎁 MIỄN PHÍ kiểm tra giám sát các lần đổ móng, sàn, mái
🎁 MIỄN PHÍ khảo sát hiện trạng đất/nhà 🎁 HỖ TRỢ hồ sơ giấy xin cấp phép xây dựng
🎁 MIỄN PHÍ thiết kế cổng và tường rào 🎁 MIỄN PHÍ tư vấn thiết kế, tư vấn phong thủy

*Vui lòng để lại thông tin, nhân viên tư vấn sẽ liên hệ lại với quý khách trong thời gian sớm nhất

Tra cứu phong thủy
Xem hướng Nhà
Xem tuổi xây nhà
DỰ TOÁN CHI PHÍ

Bạn có thể tự tính toán chi phí xây dựng bằng phần mềm Dự toán Online của SHAC. Để lên dự trù chi phí xây dựng, hãy truy cập link sau (miễn phí):

Dự toán Chi phí xây dựng

Có liên quan

Bình luận

Để lại một bình luận

Email của bạn sẽ không được hiển thị công khai. Các trường bắt buộc được đánh dấu *

Yêu cầu tư vấn

YÊU CẦU TƯ VẤN Widget

Tìm theo số tầng

Tìm theo mặt tiền

Bài viết mới nhất

Yêu cầu tư vấn

YÊU CẦU TƯ VẤN Widget

Ảnh khác

.
.
0906.222.555