Thiết kế nhà phố luôn luôn là loại hình thiết kế nhà dân dụng được nhiều người lựa chọn nhất bởi các tiện nghi và lợi thế mà loại hình này mang lại. Cùng với đó, phong cách thiết kế tân cổ điển cũng là phong cách được yêu thích vì kết hợp được những sự hoàn hảo của cả thiết kế hiện đại và thiết kế cổ điển. Kết hợp cùng nhau, đây là loại hình thiết kế kiến trúc có tỷ trọng được lựa chọn nhiều nhất trong khoảng thời gian gần đây tại Sơn Hà Group. Trong ngày hôm nay, hãy cùng Sơn Hà Group tìm hiểu công trình nhà phố tân cổ điển diện tích 105m2 tại Hải Phòng dưới đây nhé!
NỘI DUNG CHÍNH

Là một người yêu thích phong cách kiến trúc tân cổ điển, chủ đầu tư đã chủ động tìm đến Sơn Hà Group để trao đổi về mong muốn của mình. Với nhiều phương án khác nhau để lựa chọn, Sơn Hà Group đã trao cho khách hàng sự chủ động trong việc tìm kiếm thiết kế kiến trúc. Sau nhiều phương án khác nhau về kiến trúc, công năng và cách triển khai, Sơn Hà Group và chủ đầu tư đã thống nhất được phương án cụ thể đó là phong cách tân cổ điển với gam màu trắng làm chủ đạo, tinh tế, thanh lịch và sang trọng.
Dưới đây, hãy cùng chúng tôi tham khảo gợi ý thiết kế công trình ngày hôm nay và để lại những nhận xét cùng Sơn Hà Group nhé!
Nói tới thiết kế kiến trúc, công trình ngày hôm nay sử dụng kiểu kiến trúc đối xứng và xếp tầng, tạo sự hiên ngang và vững chãi cho tổng thể. Cách xếp tầng và nhắc lại chi tiết thiết kế đem đến hiệu ứng thị giác ấn tượng, tăng thêm chiều sâu cho mặt tiền 7.5m của ngôi nhà. Đồng thời với cách sắp xếp kiến trúc như vậy, công trình đem đến sự thanh lịch, cao ráo và tinh tế.

Phong cách tân cổ điển thể hiện trong thiết kế lần này qua sự kết hợp của phào chỉ và cột trụ. Trong công trình này, hệ cột trụ được thiết kế với kích thước vừa phải, ẩn vào với kiến trúc chung của tòa nhà, tạo nên sự liền mạch và hài hòa cho tổng thể công trình, cùng đó việc tiết chế các phào chỉ ở mức độ vừa phải đem lại sự cân bằng cần thiết.




Về màu sắc và chất liệu, Sơn Hà Group vẫn trung thành với màu sắc trắng làm gam màu chủ đạo, đi cùng với các tông màu tối như nâu, đen của các chi tiết kim loại và chi tiết gỗ, đem lại tổng hòa cân bằng và ấn tượng. Cuối cùng là chi tiết mái, chi tiết mái thái là điểm nhấn cả về thiết kế lẫn kỹ thuật của công trình. Mái thái đem đến sự cao ráo, thanh lịch đồng thời cũng là chi tiết giúp tránh đọng nước mưa, giảm tình trạng ngấm, dột.
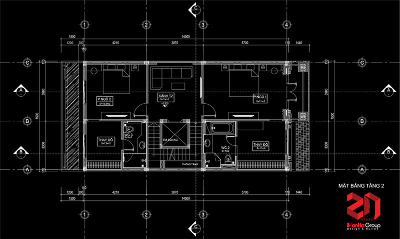
Đối với Sơn Hà Group, bất cứ ngôi nhà nào cũng cần phải cân bằng được cả hai yếu tố đó là thiết kế kiến trúc và công năng sử dụng. Một ngôi nhà có những yếu tố phụ trợ, bổ sung lẫn nhau đem đến trải nghiệm sống hoàn hảo cho người sử dụng. Trong đó, công trình ngày hôm nay với diện tích lên đến 105m2 cũng không phải là ngoại lệ, sau đây là phương án thiết kế và thi công mặt bằng công năng của công trình ngày hôm nay:




Trên đây là toàn bộ phương án thiết kế, thi công công trình nhà phố tân cổ điển 105m2 được thiết kế và thi công bởi Sơn Hà Group dành cho chủ đầu tư tại Hải Phòng. Một lần nữa đây là gợi ý thiết kế nhà độc đáo mà Sơn Hà Group muốn gửi đến độc giả để làm phong phú thêm nhiều sự lựa chọn hơn khi quyết định thiết kế kiến trúc. Cảm ơn và hẹn gặp lại tại các bài viết tiếp theo!
Ảnh khác
Bình luận