Tọa lạc tại vị trí đẹp, đáp ứng các tiêu chuẩn thiết kế khách sạn sang trọng, kiến trúc độc đáo và thể hiện được tính duy nhất, công năng được bố trí khoa học và tối ưu,… tất cả đã làm nên sự hoàn hảo cho mẫu khách sạn đẹp tiêu chuẩn với thiết kế 7 tầng, diện tích 230m2 mà chúng tôi sẽ giới thiệu đến bạn trong bài viết hôm nay của chuyên mục thiết kế khách sạn.
Mẫu thiết kế khách sạn tân cổ điển này chính là tâm huyết của đội ngũ kiến trúc sư và kỹ sư, đồng thời là kết quả tốt đẹp cho quan hệ hợp tác thấu hiểu giữa chủ đầu tư và Sơn Hà Group. Nhìn vào tổng thể kiến trúc khách sạn chúng ta sẽ thấy đây thực sự là một tác phẩm nghệ thuật được tạo nên từ những thứ đơn giản nhất của phong cách kiến trúc tân cổ điển. Từ màu sắc, đường nét đến bố cục, tất cả đều vừa vặn như đặt đồng hồ, thể hiện cả gu thẩm mỹ tinh tế của chủ đầu tư.
NỘI DUNG CHÍNH
Trên khu đất có diện tích đất 230m2, các kiến trúc sư đã tối ưu hóa để thiết kế khách sạn tân cổ điển đẳng cấp tiện nghi. Ngoại thất khách sạn được thiết kế theo phong cách kiến trúc tân cổ điển mang hơi hướng Pháp với những hệ mái vòm, hệ thống hoa văn trang nhã và đơn giản cùng hệ thống cửa mang đậm dấu ấn đặc trưng của lối kiến trúc này. Với phong cách kiến trúc tân cổ điển, đây chính là trường phái kiến trúc được pha trộn hoàn hảo giữa 2 lối kiến trúc cổ điển và hiện đại để làm nên nét sang trọng, đẳng cấp nhưng vẫn trẻ trung, năng động, hiện đại cho khách sạn.

Các khối hình luôn được thiết kế giật cấp để tạo nên những góc view rộng nhất có thể cho thấy sự trau chuốt đến tỉ mỉ và công phu, giúp không gian ngoại thất đẹp, lạ hơn so với các không gian kiến trúc khác. Cùng với đó, các đường gờ, phào chỉ được bố trí một cách đơn giản chủ yếu tập trung vào các chi tiết trang trí đầu và chân cột để sao cho không gian ngoại thất của mẫu khách sạn tân cổ điển trở nên ấn tượng, thu hút đối với khách du lịch. Từ đây có thể thấy rằng việc tập trung vào bố cục mạch lạc và chặt chẽ đã giúp các kiến trúc tạo nên những điểm nhấn không thể hoàn hảo hơn cho mẫu khách sạn tân cổ điển đẹp này.

Ngoài ra, kiến trúc đối xứng với các cửa sổ, sửa thông gió tạo nên hiệu ứng thị giác đẹp mắt, ấn tượng và thu hút, Sơn Hà Group đã nghiên cứu và chọn lọc phương án tối ưu nhất để đem lại những giá trị nghệ thuật lẫn giá trị thương mại tối ưu. Với chiều rộng mặt tiền khá ấn tượng lên đến 10m, các kiến trúc sư Sơn Hà Group đã tận dụng diện tích để “tô vẽ” không khí tân cổ điển đầy tinh tế, hứa hẹn sẽ thu hút mọi ánh nhìn.
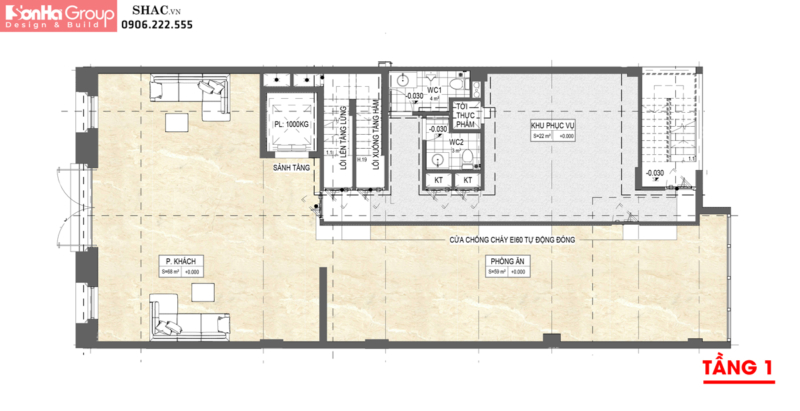
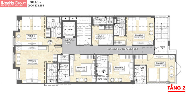
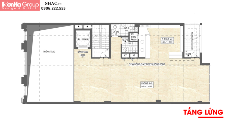
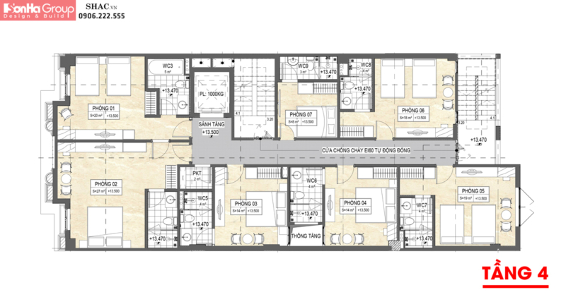
Bên cạnh những ấn tượng bởi nối thiết kế kiến trúc, công trình khách sạn tại Hải Phòng còn hoàn tòan thuyết phục vị chủ đầu tư kỹ tính bởi sự hoàn hảo trong bố trí công năng. Các tiện ích của khách sạn được tính toán và bố trí phù hợp nhất có thể trong quy mô 7 tầng 1 tum:






Bên cạnh thiết kế ngoại thất ấn tượng, phía bên trong khách sạn còn được trang trí bởi những thiết kế nội thất tiện nghi, ấm cúng và đặc biệt sang trọng. Cùng chúng tôi tham quan các không gian trong khách sạn bao gồm sảnh chờ, nhà hàng, quán cafe và phòng nghỉ.







Trên đây là toàn bộ phương án thiết kế cũng như cách chia công năng sử dụng của mẫu thiết kế khách sạn diện tích 230m2 với 7 tầng 1 tum tại Hải Phòng. Đây cũng là gợi ý cho nhiều gia chủ có cùng nhu cầu thiết kế khách sạn ở thời điểm hiện tại. Cảm ơn các bạn đã theo dõi và hẹn gặp lại tài bài viết tiếp theo!
Ảnh khác