Khám phá mẫu thiết kế nhà ống hiện đại 5 tầng 1 tum tại Hải Phòng – sự kết hợp hoàn hảo giữa không gian sống và kinh doanh. Phong cách Modern Luxury thời thượng, đường cong mềm mại, ban công xanh mướt cùng hệ kính sang trọng mang đến một công trình đáng sống và đáng ngắm nhìn.
NỘI DUNG CHÍNH

Nhà ống là một trong những loại hình nhà ở phổ biến tại các đô thị Việt Nam, đặc biệt tại những khu vực có diện tích đất hạn chế và mật độ dân cư cao. Đặc trưng của nhà ống là mặt tiền hẹp, thường chỉ từ 3 đến 5 mét, chiều sâu dài và được xây dựng theo dạng hình hộp chữ nhật. Với thiết kế tiết kiệm diện tích, nhà ống không chỉ đáp ứng nhu cầu sinh hoạt mà còn mang đến nhiều giải pháp sáng tạo trong kiến trúc, đặc biệt khi kết hợp với phong cách hiện đại như trong mẫu thiết kế này.






Nằm giữa lòng Hải Phòng sôi động, công trình nhà ống hiện đại đẹp này mang trên mình bản sắc riêng – nơi từng đường nét kiến trúc là sự kết hợp hài hòa giữa nghệ thuật và công năng.
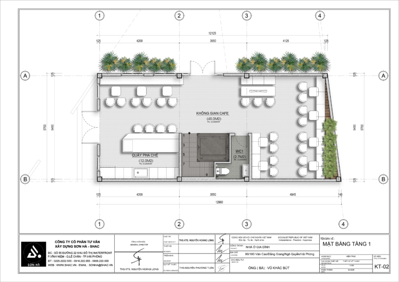
Với diện tích hơn 70m², ngôi nhà không chỉ là tổ ấm của ba thế hệ mà còn là không gian kinh doanh lý tưởng. Hai tầng dưới được thiết kế thành quán cafe sân vườn xanh mướt, một điểm hẹn đầy thi vị giữa phố thị, dành cho những tâm hồn đang tìm kiếm chút bình yên giữa nhịp sống tất bật.

Ngay từ cái nhìn đầu tiên, mặt tiền tầng 1 gây ấn tượng bởi hệ cửa kính lớn cùng đường cong mềm mại, uốn lượn đầy duyên dáng. Một cửa hông mở ra khu sân vườn xanh mướt, nơi bàn ghế cafe được bố trí khéo léo, đón gió và ánh sáng tự nhiên. Không gian nơi đây được thiết kế mở, thân thiện với thiên nhiên, lý tưởng cho việc thư giãn, trò chuyện.
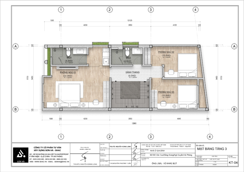
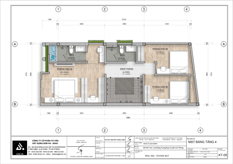
Tầng 3 và tầng 4 được thiết kế làm không gian sinh hoạt chính của gia chủ. Mỗi tầng gồm 3 phòng ngủ, với một WC chung và một WC khép kín tích hợp trong phòng ngủ master. Thiết kế hiện đại, bố trí hợp lý, đề cao tính riêng tư và thoải mái cho từng thành viên trong gia đình.
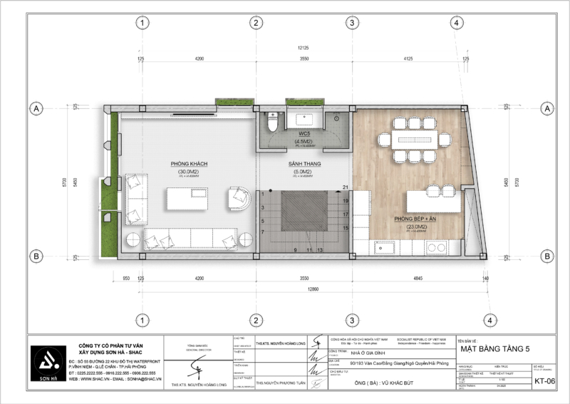
Tầng 5 là nơi tụ họp của cả gia đình với phòng khách rộng rãi, khu bếp và phòng ăn tiện nghi. Mọi không gian đều được tiếp sáng tự nhiên nhờ hệ cửa kính lớn, kết hợp đèn trần âm tạo cảm giác ấm áp, hiện đại và gần gũi.
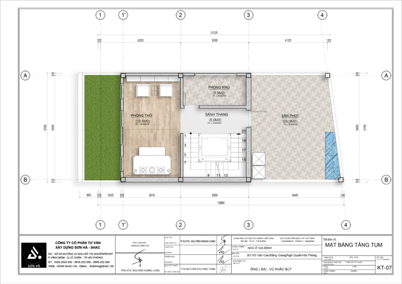
Tầng tum gồm phòng thờ – nơi lưu giữ giá trị truyền thống, một phòng kho chứa đồ và khu vực sân phơi thông thoáng. Tất cả đều được bố trí khoa học, tối ưu công năng sử dụng.

Mẫu thiết kế nhà ống hiện đại này được định hình theo phong cách Modern Luxury – sang trọng, thời thượng nhưng không kém phần tối giản. Sự kết hợp giữa các vật liệu hiện đại như kính, thép, gạch ốp tường cùng tone trắng – ghi chủ đạo, tạo nên vẻ đẹp thanh lịch và đẳng cấp.
Đặc biệt, hệ lam cong, đường bo góc mềm mại và ban công phủ xanh không chỉ mang tính thẩm mỹ mà còn giúp điều hòa khí hậu, tăng cường lưu thông không khí và ánh sáng tự nhiên.

Với thiết kế thông minh, công năng linh hoạt và vẻ đẹp kiến trúc cuốn hút, đây là một trong những mẫu nhà ống đẹp hiện đại đáng tham khảo cho các gia đình trẻ, hộ kinh doanh kết hợp sinh hoạt tại các đô thị lớn.
Không chỉ tối ưu hóa không gian theo chiều cao, công trình còn truyền tải được thông điệp sống xanh, sống chất lượng giữa lòng phố thị. Từng chi tiết nhỏ đều toát lên sự chăm chút, tinh tế – từ thiết kế mặt tiền đến bố trí nội thất bên trong.

Bạn đang tìm kiếm một mẫu thiết kế nhà ống đẹp, kết hợp được cả yếu tố công năng lẫn thẩm mỹ? Sơn Hà Group – với hơn 22 năm kinh nghiệm thiết kế & thi công nhà ống, biệt thự, nhà phố – chính là đối tác lý tưởng để bạn hiện thực hóa giấc mơ ấy.
Ảnh khác
Bình luận