Khách sạn nhỏ mà có võ
Trong thời gian gần đây, xu hướng kinh doanh khách sạn mini đã trở thành một lựa chọn phổ biến cho các chủ đầu tư. Đặc biệt là tại các thành phố lớn, đông đúc như: Hà Nội, TP.HCM,... khách sạn mini tại các khu vực trung tâm đang trở thành sự lựa chọn yêu thích cho các khách hàng có nhu cầu lưu trú ngắn hạn, các khách công vụ. Khác với các khách sạn lớn, khách sạn mini thường có diện tích nhỏ với số lượng phòng ít hơn và không gian nhỏ gọn, được tối ưu hóa để đáp ứng nhu cầu của khách hàng muốn tìm một nơi nghỉ ngơi thoải mái, tiện nghi và giá cả phải chăng. Nhiều khách sạn mini cũng tập trung vào phong cách thiết kế độc đáo, tạo ra không gian nghỉ ngơi đầy cá tính và thu hút các khách hàng trẻ tuổi.
Khách sạn mini phong cách Tân cổ điển 4 tầng tại Sài Gòn mà Sơn Hà có cơ duyên được làm việc và thiết kế cho anh Trần Ngọc Thanh cũng là một trong những khách sạn như vậy.
Hãy cùng Sơn Hà tìm hiểu ý tưởng và cách xử lý kiến trúc cho không gian này để có được một “công trình khách sạn nhỏ mà có võ”.
Thông tin về công trình:
Chủ đầu tư: Trần Ngọc Thanh
Địa điểm: Sài Gòn
Loại hình: Thiết kế khách sạn Tân cổ điển
Diện tích: 160 m2 x 1 tầng bán hầm + 4 tầng nổi + tầng mái
Công năng sử dụng:
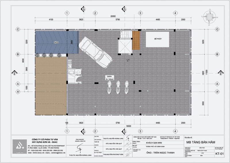
Tầng bán hầm: Nơi để xe, Phòng bảo vệ
Tầng 1: Sảnh tầng, Phòng khách, 3 phòng ngủ
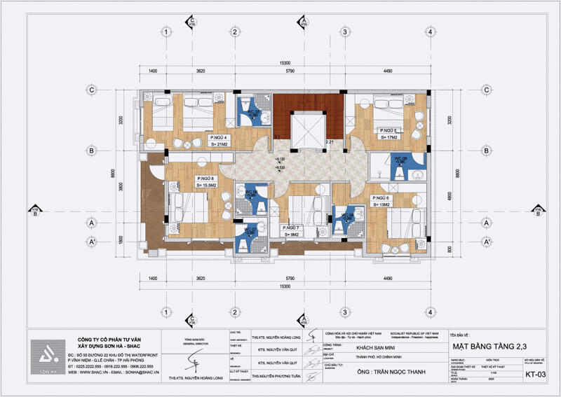
Tầng 2: Hành lang tầng, 5 phòng ngủ
Tầng 3: Hành lang tầng, 5 phòng ngủ
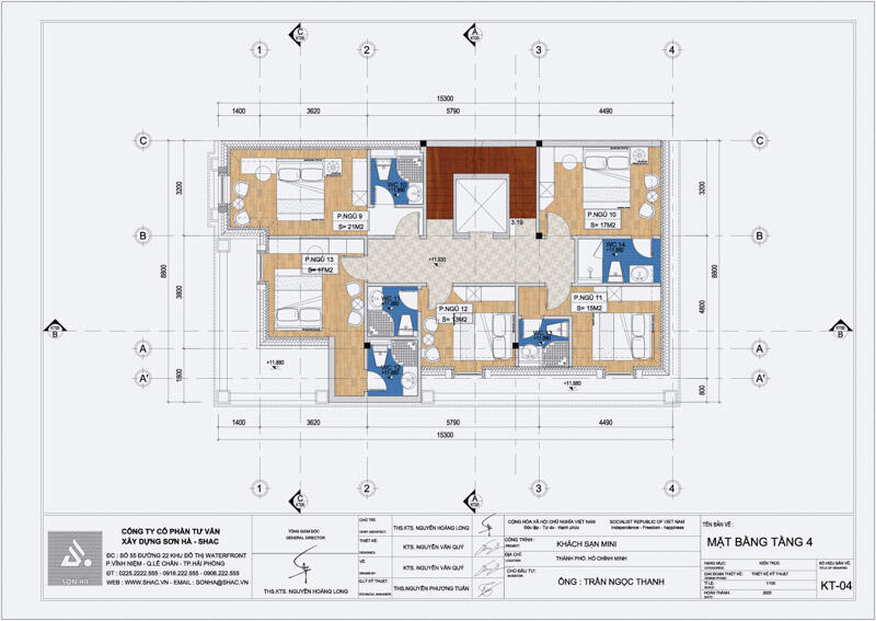
Tầng 4: Hành lang tầng, 5 phòng ngủ
Tầng mái: Sân thượng
Đơn vị thực hiện: Sơn Hà Group (#SHAC)
Xây dựng trên diện tích eo hẹp (chỉ rộng 160 m2), và nằm trong khu đất thuộc quy hoạch đô thị, khách sạn mini của anh Thanh đã được định hình và trở thành một khách sạn mini với thiết kế Tân cổ điển sang trọng, tiện ích vượt ngoài mong đợi của khách hàng, tối ưu số lượng phòng để đem lại hiệu quả kinh doanh cao nhất.
Hãy cùng xem cách xử lý rất khéo léo và thông minh của KTS Sơn Hà trong không gian này:
1.Tối ưu hóa không gian: Vì khách sạn có diện tích nhỏ, việc tối ưu không gian là rất quan trọng. Nên thiết kế các không gian phù hợp, tiện nghi, hợp lý để tận dụng tối đa diện tích sử dụng.
Khách sạn được thiết kế một tầng bán hầm để tận dụng không gian đỗ xe cho khách, phòng bảo vệ được bố trí tại đây đế tối ưu không gian sử dụng.

Các tầng đều được thiết kế tối đa số lượng phòng để phục vụ khách hàng và đảm bảo hiệu quả kinh doanh tốt nhất cho chủ đầu tư. Các phòng đều được xử lý một cách phù hợp, tối ưu, nhỏ nhưng bố trí thông minh, đầy đủ tiện nghi.
2. Thiết kế không gian mở: KTS của Sơn Hà đã sử dụng các phương án thiết kế không gian mở giữa các khu vực khác nhau như sảnh lễ tân, sảnh chờ (phòng khách) để tạo ra sự thông thoáng và rộng rãi. Thiết kế này giúp cho khách hàng có cảm giác thoải mái và sảng khoái khi sử dụng các khu vực này.
Các phòng ngủ diện tích nhỏ đều được thiết kế cửa để lấy được ánh sáng, gió tự nhiên tối đa. Tạo sự thoáng đãng cho cả căn phòng.
3. Sử dụng tông màu sáng: Khách sạn sử dụng tông màu kem sáng chủ đạo tạo cảm giác rộng rãi và thoải mái cho khách hàng khi ở trong khách sạn. Với kiến trúc bên ngoài mang phong cách Tân cổ điển pha nét hiên đại…tiết chế tối đa hoạt tiết, kết hợp với hệ cửa nhôm tạo nhiều không gian mở cho khách sạn là một cách xử lý rất thông minh của Kiến trúc sư.

4.Sử dụng ánh sáng: Ánh sáng có thể là một công cụ mạnh mẽ với khách sạn có không gian hẹp. Kiến trúc sư của Sơn Hà đã sử dụng ánh sáng một cách khéo léo để tạo ra không gian rộng hơn và làm nổi bật các tính năng quan trọng của khách sạn.
5, Chọn vật liệu và trang thiết bị phù hợp để tiết kiệm không gian.
Sử dụng các loại cửa trượt để giảm thiểu không gian sử dụng và tạo ra sự thông thoáng cho không gian.
Với những gợi ý chi tiết và độc đáo kể trên, chúng tôi tin rằng các bạn đọc đã có thêm những gợi ý tuyệt vời để thiết kế công trình của riêng mình. Đừng quên theo dõi Sơn Hà Group trên website, các nền tảng mạng xã hội để cập nhật những thiết kế mới nhất, ấn tượng nhất nhé!
Dưới đây là một vài hình ảnh về mẫu khách sạn mini Tân cổ điển này, mời bạn cùng xem!








| Mọi chi tiết xin liên hệ:
CÔNG TY CỔ PHẦN TƯ VẤN XÂY DỰNG SƠN HÀ (SHAC)
Văn phòng đại diện
|
Ảnh khác
Bình luận