Nằm trên một tuyến phố đông đúc, Rose Hostel là một không gian sống lý tưởng cho du khách tận hưởng trọn vẹn kỳ nghỉ của mình. Với vị trí thuận lợi, du khách có thể dễ dàng di chuyển từ nhà nghỉ này tới các địa điểm du lịch nổi tiếng của Hà Giang.
NỘI DUNG CHÍNH
Rose Hostel là một ngôi nhà nhỏ thanh lịch với không gian sống độc đáo, ấm cúng dành cho du khách và gia đình chủ nhà. Với thiết kế 4 tầng 1 tum, ngôi nhà là một bức tranh tuyệt đẹp giữa khung cảnh thiên nhiên hùng vĩ tại Hà Giang.
Với vị trí thuận lợi, Rose Hostel cũng là điểm đến hấp dẫn để du khách có thể dễ dàng di chuyển tới các điểm du lịch nổi tiếng như Đèo Mã Pí Lèng, sông Nho Quế hay Cao nguyên đá Đồng Văn,...

Mặt tiền với những hoa văn tinh tế, hệ thống cửa sổ lớn và ban công nhỏ xinh xắn trồng đầy hoa hồng đã tạo ra một vẻ đẹp lãng mạn và cuốn hút cho ngôi nhà. Chị chủ của Rose Hostel đã rất tinh tế khi lựa chọn loài hoa này cho ngôi nhà, nơi là tổ ấm yêu thương của gia đình chị và là chốn dừng chân của những du khách khi ghé thăm nơi này. Mỗi bông hoa hồng được trồng tại đây đều là một hạt mầm mang đến sự sống động và tươi vui cho những người sinh sống trong ngôi nhà.
Dưới bàn tay tài hoa của các kiến trúc sư, việc bố trí và sắp đặt không gian đã được giải quyết một cách triệt để, đảm bảo các công năng cần thiết của một nhà nghỉ để mỗi khi bước vào nhà, du khách đều được khơi gợi một cảm xúc khác, một cảm nhận khác đầy hứng khởi.
Kiến trúc 4 tầng 1 tum được thiết kế tỉ mỉ theo phong cách tân cổ điển với lượng sáng vừa đủ cho mỗi không gian nhờ hệ thống giếng trời thoáng mát.

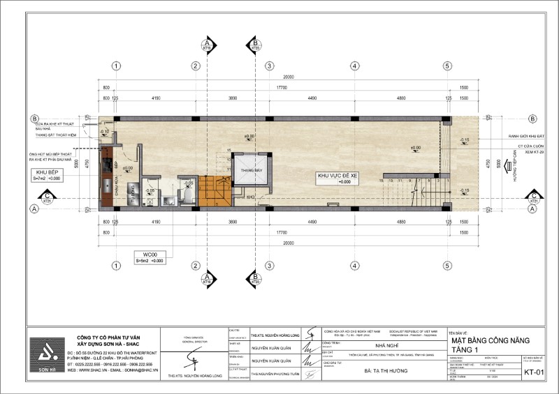
Với diện tích không lớn, việc đặt khu bếp ở tầng 1 cuối nhà là cách để hạn chế mùi thức ăn bay vào các không gian sinh hoạt chung trong nhà, ảnh hưởng đến sinh hoạt của gia đình.
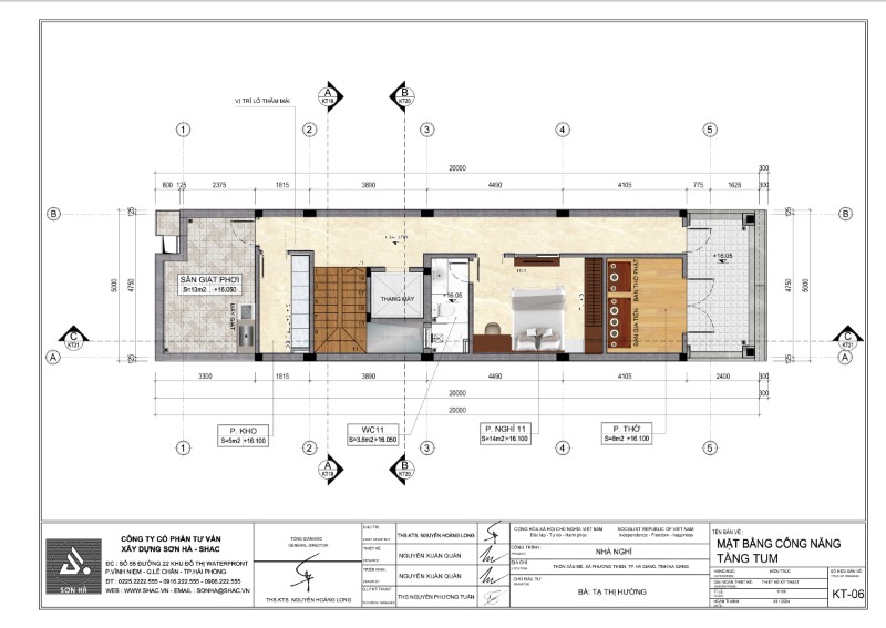
Một giếng trời nhỏ được đặt tại các tầng phía trên của ngôi nhà cũng là một giải pháp nhằm giúp ngôi nhà luôn nhận đủ lượng sáng cần thiết cho từng phòng, lõi thang và hành lang của ngôi nhà.

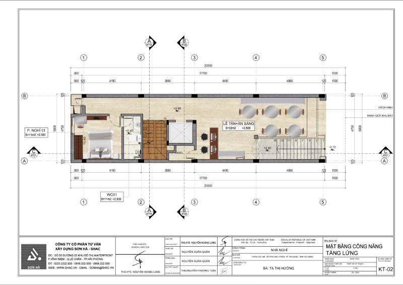
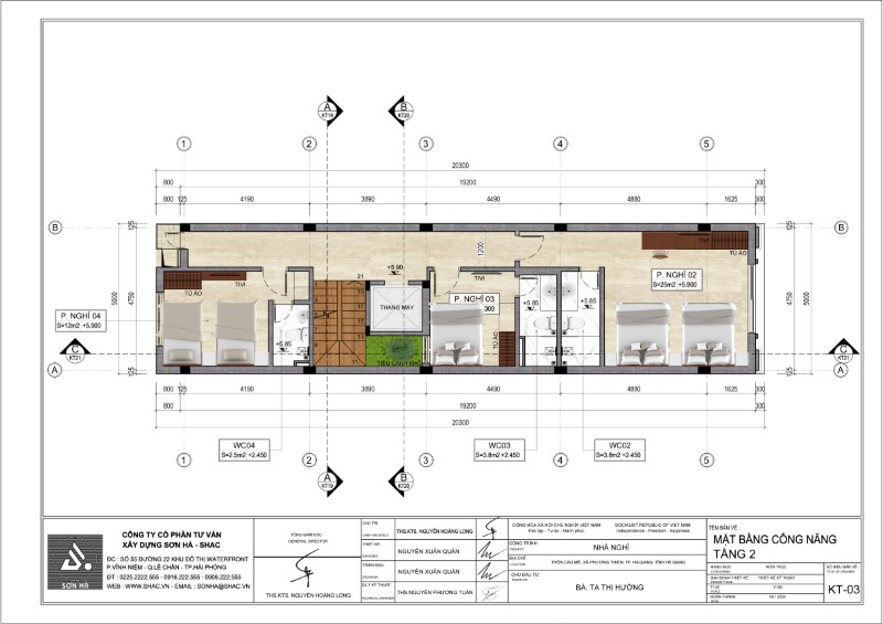
Với mục tiêu để mỗi không gian được thiết kế đều là một không gian sống hoàn hảo, tiện nghi với ánh sáng đủ đầy và không khí tươi lưu thông trong nhà, các tầng 2 đến tầng 4 được dành cho du khách và để các không gian còn lại gồm tầng lửng và tầng tum cho sinh hoạt của gia đình. Tổng thể kiến trúc ngôi nhà được thiết kế theo phong cách tân cổ điển với vật liệu tự nhiên, hiện đại như gạch lát đá tự nhiên, kính, bê tông,... đều được xử lý đúng kỹ thuật, tỉ mỉ đến từng chi tiết, mang đến không gian sống tinh tế và tiện nghi cho du khách và gia đình.



Là không gian kinh doanh nhưng đồng thời cũng là không gian sống của gia đình, nhà nghỉ đã buộc các kiến trúc sư phải có cách bố trí không gian thật hợp lý để tạo ra sự thoải mái, dễ chịu và tiện nghi cho cả người nhà và du khách. Điển hình như giàn hoa hồng được trồng trên mỗi ban công của ngôi nhà, đây chính là điểm nhấn thu hút và là một góc thư giãn riêng tư, đẹp và bình yên trong ngôi nhà.

Thiết kế tầng lửng và tầng tum dành cho không gian sống của gia đình cũng giúp cuộc sống của chủ nhà thoải mái và tiện lợi mà vẫn thuận tiện cho công việc thường ngày.
Việc thiết kế một ngôi nhà ở kết hợp kinh doanh nhà nghỉ đòi hỏi người thiết kế phải có sự cân nhắc kỹ lưỡng và kết hợp hài hòa giữa yếu tố thẩm mỹ, công năng và kinh tế. Để có một không gian sống vừa đẹp, tiện nghi, vừa mang lại hiệu quả kinh doanh cao, gia chủ cần tuân thủ những lưu ý dưới đây:
Thiết kế nhà nghỉ cần đảm bảo phân tách các không gian sinh hoạt chung và không gian kinh doanh một cách hợp lý. Các không gian như sảnh lễ tân, phòng nghỉ, khu vực ăn uống, nhà bếp cần được bố trí hợp lý, thuận tiện cho việc di chuyển và phục vụ khách hàng. Trong khi đó, khu vực sinh hoạt của gia đình cần đảm bảo sự riêng tư và yên tĩnh.
Các không gian có thể linh hoạt thay đổi công năng để đáp ứng nhu cầu sử dụng của du khách và gia đình. Với các mẫu nhà nghỉ có diện tích không lớn, việc tập trung vào công năng sử dụng sẽ giúp ngôi nhà đảm bảo được sự thoải mái, tiện nghi và tính thẩm mỹ cần thiết.

Gia chủ cần lựa chọn phong cách thiết kế phù hợp với sở thích, đối tượng khách hàng mục tiêu và đặc điểm của khu đất xây dựng. Việc sử dụng màu sắc và ánh sáng hài hòa cũng góp phần không nhỏ giúp ngôi nhà thêm phần ấn tượng và thu hút.
Các lối cửa ra vào, cửa sổ, hệ thống điện nước, hệ thống phòng cháy chữa cháy cần được trang bị đầy đủ để đảm bảo an toàn và thuận tiện cho sinh hoạt.
Các nhà nghỉ nhỏ, đặc biệt là các nhà nghỉ kết hợp không gian sinh hoạt của gia đình nên sử dụng các vật liệu thân thiện với môi trường, có khả năng cách nhiệt, cách âm tốt, thiết bị tiết kiệm năng lượng nhằm đảo bảo sự bền vững và tối ưu năng lượng sử dụng.

Là đơn vị có 21 năm kinh nghiệm thiết kế, thi công các công trình nhà ở gia đình kết hợp kinh doanh cho khách hàng trong cả nước, Sơn Hà Group tự hào là đơn vị đồng hành, cùng gia chủ tạo ra không gian sống như ý với cam kết:

Rose Hostel là một thiết kế hướng đến giá trị sống trọn vẹn cho cả khách lưu trú và người sinh sống trong gia đình. Với thiết kế hội tụ đủ các yếu tố: thẩm mỹ, công năng, an toàn và kinh tế, nhà nghỉ này chính là một trong những mẫu thiết kế tiện nghi, đáp ứng trọn vẹn nhu cầu sống của chủ nhà. Với sự tận tâm và chuyên nghiệp, Sơn Hà Group sẽ giúp bạn sở hữu một không gian sống hoàn hảo nhất.
Ảnh khác
Bình luận