Trong nội dung bài viết hôm nay, chúng tôi mời bạn đọc cùng đến với Dự án thiết kế khách sạn 5 sao sang trọng tại Phú Quốc. Công trình được thiết kế theo phong cách cổ điển châu Âu mã số SH KS 0023. Với năng lực và kinh nghiệm đã được khẳng định, bằng hàng chục mẫu thiết kế khách sạn được đánh giá cao trên nhiều tỉnh thành của đất nước hình chữ S. Công ty Cổ phần Tư vấn Xây dựng Sơn Hà (SHAC) tự hào là một trong số ít doanh nghiệp xây dựng gắn tên trên những công trình khách sạn đẹp quy mô, đẳng cấp hội tụ đủ các yếu tố chất lượng trong thi công, độc đáo trong thiết kế.

Chào mừng năm mới 2016 với việc bàn giao thành công hồ sơ thiết kế khách sạn 5 sao sang trọng tại huyện đảo Phú Quốc xinh đẹp của tỉnh Kiên Giang, SHAC đã một lần nữa tự hào khẳng định với các chủ đầu tư và thị trường toàn quốc về năng lực thiết kế và thi công loại hình công trình quy mô với những yêu cầu khắt khe về thẩm mỹ và kỹ thuật này.
NỘI DUNG CHÍNH
Sau đây là một số hình ảnh kiến trúc ngoại thất ấn tượng của phương án thiết kế khách sạn tiêu chuẩn 5 sao SH KS 0023. SHAC trân trọng mời bạn đọc cùng chiêm ngưỡng.
Video giới thiệu về công trình của SHAC
>> Xem chi tiết Kiến trúc và nội thất sau khi hoàn thiện tại đây
Phải thừa nhận rằng lĩnh vực thiết kế khách sạn của SHAC đã có được sự khởi đầu vô cùng suôn sẻ khi mẫu khách sạn cổ điển Pháp tiêu chuẩn 5 sao đẳng cấp được trình làng thành công. Trước khi đi vào phần giới thiệu các góc view của SH KS 0023, chúng tôi xin điểm qua một số thông tin cơ bản về công năng của công trình để bạn đọc nắm được. Cụ thể, với diện tích sàn gần 1600m2, 220 phòng được phân bố khoa học trên 12 tầng của công trình khách sạn như sau:
Tầng hầm: Không gian rộng lớn này được bố trí gara để xe và các khu vực kỹ thuật vận hành của toàn tòa nhà.
Tầng 1 + tầng lửng: Chúng tôi bố trí sảnh đón tiếp với thiết kế phong cách châu Âu sang trọng. Bên cạnh đó là không gian café và ăn nhanh dành cho du khách. Cuối cùng là khu văn phòng dành cho cán bộ nhân viên quản lý và vận hành.
Tầng 2 đến tầng 8: Được bố trí 186 phòng nghỉ cho du khách theo các hạng thường và Vip. Mỗi hạng phòng sẽ gồm loại phòng đơn và phòng đôi. Tiêu chuẩn 5 sao đã khiến những phòng ngủ này được thiết kế nội thất tiện nghi, cao cấp và sang trọng đáp ứng các nhu cầu ăn, ngủ, nghỉ, xông hơi,…
Tầng 9: Bên cạnh các phòng tổ chức sự kiện (phòng hợp, hội thảo,…), chúng tôi thiết kế thêm một số phòng ngủ dành cho du khách.
Tầng áp mái: Không gian này được dành để bố trí khu vực kỹ thuật và phòng ngủ cho cán bộ nhân viên.
Và đây là kiến trúc của khách sạn được dựng theo phương án bố trí công năng khoa học trên:

Phối cảnh tổng thể của khách sạn phong cách cổ điển sang trọng mãn nhãn


Phối cảnh kiến trúc mặt sau của công trình

Cận cảnh các chi tiết kiến trúc của phương án thiết kế mặt tiền và sảnh tầng 1

Sảnh sau cũng sang trọng không kém

Mẫu thiết kế khách sạn 5 sao càng rực rỡ hơn với phối cảnh lên đèn về đêm

Ánh đèn rực rỡ càng làm tôn lên nét sang trọng và tinh tế của mẫu khách sạn đẹp

Dù đêm hay ngày mẫu khách sạn đẹp tiêu chuẩn 5 sao đều ấn tượng từ mọi góc view
Chúng tôi xin trao đổi thêm về một số thông tin ý tưởng thiết kế kiến trúc ngoại thất khách sạn để bạn đọc có được hình dung rõ nét hơn về công trình. Tọa lạc trong khuôn viên rộng và có quy hoạch đẹp mắt, thoáng đãng với những view “đắt”, công trình khách sạn được mở sảnh ở cả mặt tiền và mặt hậu. Cùng với thiết kế khoáng đạt, sáng, sang với vật liệu ốp lát cao cấp cả về họa tiết và màu sắc, sảnh trước và sảnh sau của khách sạn đều xứng đáng được ví như “lối dẫn hoa lệ vào lâu đài đẳng cấp”. Phù điêu, hòa văn, cột trụ,… với bố trí hài hòa và cân đối đã góp phần lớn làm nên cốt cách sang trọng của sảnh nói riêng và thiết kế kiên trúc nói chung. Bạn đọc vui lòng xem lại phối cảnh kiến trúc công trình chúng tôi đã giới thiệu để cảm nhận rõ hơn về điều này.
Đồng nhất với chủ sở hữu của công trình, nhiều chủ đầu tư, đối tác và đồng nghiệp SHAC cũng thống nhất rằng cách sử dụng màu sắc của các kiến trúc sư SHAC để trang trí nội ngoại thất khách sạn cũng là điểm khiến họ hoàn toàn bịt huyết phục. Thực tế đã chứng minh sự hài hòa trong màu sắc và sắp xếp trong bố mục ngoại thất đã mang đến “sức nặng” đốn gục mọi ánh nhìn cho SH KS 0023.
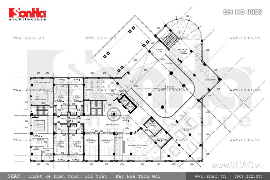
Chúng tôi mời bạn đọc xem thêm mặt bằng công năng của khách sạn:
Bản vẽ mặt bằng tầng 1 của khách sạn 5 sao phong cách cố điển châu Âu
Bản vẽ mặt bằng tầng lửng
Xếp hạng 5 sao là loại hình khách sạn cao cấp được xếp vào loại hạng sang với kiến trúc ngoại thất bắt mắt cùng không gian nội thất sang trọng và đầy đủ tiện nghi. Thiết kế nội thất 5 sao là một tiêu chí quan trọng để đánh giá chất lượng cũng như đẳng cấp của khách sạn đó. Bởi vậy những tiêu chuẩn về nội thất cần đạt được đòi hỏi phải vừa thể hiện được tính thẩm mỹ đồng bộ với phong cách thiết kế kiến trúc. Đồng thời phải tạo được ấn tượng sâu sắc với khách hàng từ mọi không gian các phòng chức năng để từ đó họ được cảm nhận tốt về khách sạn và lựa chọn đây sẽ làm điểm đến nghỉ dưỡng cho những lần tiếp theo.
Luôn không ngừng đổi mới sáng tạo trong tư duy thiết kế và cũng như cập nhật những xu hướng thiết kế nội thất khách sạn mới nhất, đồng thời nắm bắt được tâm lí của các chủ đầu tư kinh doanh loại hình dịch vụ này.
Khách sạn kiểu Pháp 5 sao 12 tầng tại Phú Quốc được đội ngũ KTS Sơn Hà chú trọng đến thiết kế đạt đúng tiêu chuẩn thiết kế nội thất sang trọng, đảm bảo đầy đủ cơ sở vật chất và tiện nghi nhất cho một khách sạn cao cấp. Không gian được chúng tôi quy mô trên diện tích xây dựng 1560m2 vô cùng rộng lớn và bề thế, từng hạng mục kể đến như: sảnh đón tiếp, quầy lễ tân, phòng bếp ăn, phòng ngủ, phòng tắm, quầy bar, quán café….đều được sắp xếp không gian theo bố cục khoa học, hợp lý và luôn đầy đủ tiện nghi.
Thiết kế sảnh khách sạn tiêu chuẩn 5 sao là sự kết hợp hoàn hảo giữa hình thức kiến trúc và nội thất. Sảnh chờ đẹp sẽ tạo được ấn tượng đầu tiên. Đội ngũ kiến trúc sư SHAC đã lên phương án thiết kế sảnh khách sạn kiến trúc Pháp 12 tầng theo tiêu chuẩn 5 sao thể hiện rõ trong cách bày trí không gian sảnh rộng, đồ nội thất cao cấp, ánh sáng đẹp, màu sắc kết hợp tinh tế hài hòa đậm chất cổ điển hoàng gia.




Một công trình khách sạn kiến trúc Pháp quy mô hoành tráng như vậy cần thiết phải có những không gian văn phòng để phục vụ mục đích quản lý khách sạn của chủ đầu tư được tốt hơn. Những căn phòng này cũng được thiết kế đẹp và tiện nghi đạt tiêu chuẩn một khách sạn cao cấp.





Phòng ngủ khách sạn là không gian mà các lưu khách dành phần lớn thời gian lưu trú của mình tại đây, là nơi thư giãn nghỉ ngơi trong kì nghỉ đầy thú vị hay điểm dừng chân của những chuyến công tác xa. Vì thế việc thiết kế phòng ngủ tiêu chuẩn 5 sao phải thỏa mãn tốt các tiêu chuẩn khắt khe về thiết kế nội thất loại hình khách sạn cao cấp này là sự sang trọng, sạch sẽ, thoải mái và tiện nghi. Qua nhiều năm thiết kế khách sạn 5 sao và thi công rất nhiều công trình, SHAC luôn hiểu được tầm quan trọng trong nội thất phòng ngủ. Với tiêu chí hiện đại, thẩm mỹ và tiện nghi SHAC đã thực hiện nhiều phương thiết kế nội thất phòng ngủ đẹp, mời các bạn chiêm ngưỡng những mẫu thiết kế phòng ngủ khách sạn tiêu chuẩn 5 sao tại Phú Quốc của chúng tôi.





Để đáp ứng nhu cầu nghỉ dưỡng của một đoàn khách du lịch hoặc nhu cầu được ở chung một phòng của gia đình nhiều người, chúng tôi đã lên phương án thiết kế phòng ngủ khách sạn bố trí 3 giường ngủ trong không gian rộng và thoáng cân gió cân sáng hợp lý

Một công trình khách sạn tiêu chuẩn 5 sao bên cạnh các phòng chức năng chính như sảnh chờ được thiết kế đẹp mắt, các phòng bếp ăn, phòng ngủ…. thì luôn cần có những không gian như quầy bar, quán café để phục vụ nhu cầu giải trí, thư giãn của khách hàng. Những không gian này cũng được thiết kế đẹp và tiện nghi, tạo được sức hút và ghi dấu trong lòng mỗi khách hàng.








Trong các bài viết sau, chúng tôi sẽ tiếp tục cập nhật đến bạn đọc những hình ảnh về phương án thiết kế của công trình. SHAC cảm ơn bạn đọc đã theo dõi nội dung bài viết và chúng tôi hi vọng sẽ nhận được sự ủng hộ cao từ bạn đọc cả nước cho mẫu khách sạn 5 sao đẹp này.
Mọi chi tiết xin liên hệ:
CÔNG TY CỔ PHẦN TƯ VẤN XÂY DỰNG SƠN HÀ (SHAC)
Trụ sở chính: Số 55, Đường 22, KĐT Waterfront City, Phường Lê Chân, TP. Hải Phòng
CÁC VĂN PHÒNG ĐẠI DIỆN
Ảnh khác