Bạn có thắc mắc khi lựa chọn phong cách thiết kế cho căn nhà của mình? Thời gian gần đây, biệt thự 3 tầng mái Nhật đang được ưa chuộng và rất phổ biến trong kiến trúc nhà cửa. Ngoài thiết kế đa dạng, tính thẩm mỹ cao, kết cấu mái Nhật còn mang lại nhiều tiện lợi cho gia chủ. Hãy tham khảo ngay TOP 6+ biệt thự mái Nhật 3 tầng hiện đại theo xu hướng năm 2023 do Sơn Hà Group tổng hợp nhé!
>>>> THAM KHẢO THÊM: 100 mẫu thiết kế biệt thự 3 tầng đẹp, hiện đại, đẳng cấp 2023
NỘI DUNG CHÍNH
Thiết kế mái Nhật là lối kiến trúc mái dốc thường xuất hiện ở các căn nhà tại Nhật Bản. Được du nhập vào Việt Nam, mái Nhật đã có những thay đổi đáng kể để phù hợp với văn hóa, cách bày trí của người Việt. Nhìn chung, kết cấu thiết kế kiến trúc biệt thự mái Nhật phù hợp với nhiều phong cách từ cổ điển đến hiện đại nên các gia chủ rất yêu thích.

So với mái bằng đơn giản, biệt thự 3 tầng mái Nhật lại mang nét thời thượng, hiện đại với nhiều kiểu dáng, kết cấu phong phú. Các kiến trúc sư của Sơn Hà Group ưa chuộng và đề cử thiết kế mái Nhật cho các gia chủ vì các lý do sau:
Biệt thự 3 tầng mái Nhật có bố cục nhẹ nhàng, tinh tế nên dễ kết hợp các phong cách khác nhau từ biệt thự cổ điển 3 tầng, pháp, tân cổ điển đến hiện đại... Đặc biệt, kết cấu mái Nhật phù hợp với các họa tiết, hoa văn châu Á nên gia chủ có thể sáng tạo theo sở thích để trang trí cho căn nhà của mình.
Hình dáng mái Nhật khá đơn giản, chỉ gồm 2 lớp: lớp bê tông và lớp xà gồ. Nhờ kết cấu trên, mái Nhật sẽ tiết kiệm phần lớn chi phí cho gia chủ so với phương án thi công các loại mái khác.
Kết cấu mái Nhật thường không quá phức tạp, đòi hỏi không quá nhiều kỹ thuật, máy móc nên quá trình thi công được tiến hành nhanh chóng, giúp tiết kiệm thời gian cho gia chủ.
Nước ta có khí hậu nhiệt đới ẩm gió mùa, vì vậy kết cấu mái Nhật khi được các kiến trúc sư đưa về Việt Nam đã có vài thay đổi. Ví dụ như, độ dốc của mái được chỉnh lại giúp thoát mưa nhanh, chống đọng nước, hạn chế ẩm thấp rất phù hợp với thời tiết ở đa số các vùng miền.

Hiện nay, phong cách biệt thự tân cổ điển 3 tầng mang âm hưởng Pháp nhẹ nhàng được rất nhiều gia chủ ưa chuộng. Lối kiến trúc hiện đại, thời thượng với sự sắp xếp hình khối sáng tạo, tỷ lệ hợp lý được Sơn Hà Group khéo léo tính toán nhằm mang lại sự tiện nghi nhất cho chủ nhà.
Dưới đây là thông tin chi tiết về căn biệt thự mái Nhật hiện đại để bạn tham khảo:
| Chủ đầu tư | Ông Khá |
| Địa chỉ | Hải Phòng |
| Loại hình | Biệt thự tân cổ điển |
| Số tầng | 3 |
| Mặt tiền | 10m |
| Tổng diện tích | 140m2 (10*14m) |
| Năm thực hiện | 2021 |
| Đơn vị thực hiện | Sơn Hà Group (#SHAC) |
| Công năng |
|
Nhờ cách tận dụng hình khối bất đối xứng thông minh, mặt tiền căn biệt thự tạo được hiệu ứng thị giác độc đáo, gây ấn tượng mạnh khi nhìn. Đặc biệt, việc bố trí ban công, lan can cổ điển xen kẽ cây cảnh xanh mát khiến không gian sống trông vừa hiện đại lại vừa hài hòa với thiên nhiên.

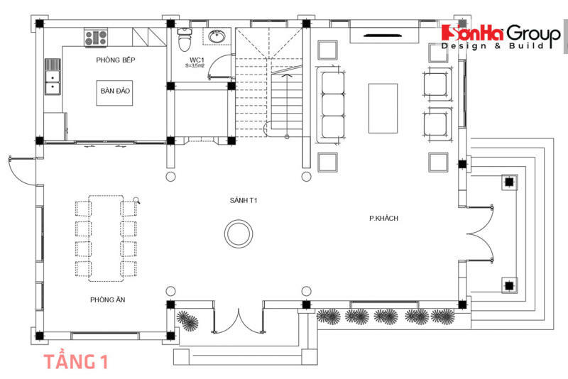
Bố trí công năng một cách khoa học nhằm mang lại sự thuận tiện cho gia chủ khi sinh hoạt luôn được đội ngũ kiến trúc sư chúng tôi ưu tiên. Hãy cùng nhìn qua phương án phân chia công năng cho căn biệt thự trên:




Nội thất của biệt thự được bố trí hài hòa giữa vẻ đẹp Á Đông và nét cổ điển của Pháp nhờ gam màu trắng tinh tế. Các chi tiết nhỏ như: lan can, trụ cột,... góp phần tăng thêm vẻ sang trọng, đẳng cấp cho căn nhà.
Biệt thự 3 tầng mái Nhật theo phong cách hiện đại luôn là sự lựa chọn ưu tiên của nhiều gia chủ bởi nét thời thượng phá cách, tính ứng dụng cao cả về thẩm mỹ và thực tiễn. Bố trí cửa kính sát đất, cây cảnh tô điểm cho căn nhà khiến không gian xung quanh trông rộng hơn tạo nên sự khác biệt giữa các dãy nhà nối tiếp.
Dưới đây là thông tin chi tiết về căn biệt thự 3 tầng hiện đại ở Hải Phòng để bạn tham khảo:
| Chủ đầu tư | Ông Hoàng Huy Sơn |
| Địa chỉ | Hải Phòng |
| Loại hình | Biệt thự hiện đại (trọn gói) |
| Số tầng | 3 |
| Mặt tiền | 10m |
| Tổng diện tích | 154m2 (10m x 15,4m) |
| Năm thực hiện | 2020 |
| Đơn vị thực hiện | Sơn Hà Group (#SHAC) |
| Công năng |
|
Mặt tiền được thiết kế dựa trên tỷ lệ hình khối độc đáo, sáng tạo khiến tổng quan biệt thự trông rộng và thoáng đãng hơn. Cửa ra vào, cửa sổ với màu sắc trang nhã cũng góp phần toát lên vẻ hiện đại cho ngoại thất căn nhà.

Sơn Hà Group luôn chú trọng việc phân chia công năng mỗi tầng để mang lại trải nghiệm sống thoải mái cho gia chủ. Dưới đây là ý tưởng phân chia công năng được chúng tôi áp dụng:



Điểm nhấn về nội thất của căn biệt thự 3 tầng mái Nhật chính là việc sử dụng các gam màu trung tính kết hợp với đa dạng vật liệu như đá ốp khiến căn biệt thự toát lên vẻ bề thế, bắt mắt. Kết cấu tối giản, tiện nghi tạo cảm giác hòa hợp với thiên nhiên khiến gia chủ hài lòng, ưng ý.


>>>> TÌM HIỂU THÊM: 5 mẫu biệt thự chữ L 3 tầng đẹp, hiện đại được ưa chuộng
Biệt thự 3 tầng mái Nhật có thể được thiết kế, biến tấu theo nhiều phong cách hiện đại mới mẻ. Đặc biệt, cách phối hợp giữa biệt thự và nhà vườn xanh mát cây mang đến cảm giác thư thái cho gia chủ và tạo nên nét độc lạ, khác biệt giữa lòng đô thị.
Dưới đây là thông tin chi tiết về căn biệt thự bề thế để bạn tham khảo:
| Chủ đầu tư | Ông Trương Văn Dũng |
| Địa chỉ | Quảng Ninh |
| Loại hình | Biệt thự hiện đại |
| Số tầng | 3 |
| Mặt tiền | 12m |
| Tổng diện tích | 216m2 (12m x 18m) |
| Năm thực hiện | 2019 |
| Đơn vị thực hiện | Sơn Hà Group (#SHAC) |
| Công năng |
|
Mặt tiền căn biệt thự được đội ngũ chúng tôi nghiên cứu, đầu tư kỹ lưỡng. Khác với các căn biệt thự mái Nhật thông thường, lần này Sơn Hà Group đã bố trí thêm khoảng sân vườn nhỏ để gia chủ trồng cây thư giãn. Ngoài ra, mái Nhật chữ A có nhiều ưu điểm trong việc hạn chế việc thu nhiệt, tạo cảm giác mát mẻ quanh năm.

Không chỉ bắt mắt về ngoại thất, phân chia công năng cho căn nhà luôn là ưu tiên hàng đầu mà bên chúng tôi hướng đến. Nhằm đáp ứng nhu cầu sinh hoạt của gia chủ, dưới đây là phương án phân chia công năng cho mỗi tầng:




Căn biệt thự tiếp theo mà Sơn Hà muốn giới thiệu đến bạn là biệt thự phong cách hiện đại được dựng bố cục một cách cẩn thận, tỉ mỉ với đường khối mạnh mẽ, dứt khoát nhưng không kém phần tinh tế. Lắng nghe ý kiến của gia chủ, Sơn Hà Group đã phác thảo kết cấu căn nhà vừa có vẻ ngoài sang trọng vừa đảm bảo tiện nghi khi sử dụng.
Dưới đây là thông tin chi tiết về căn biệt thự hiện đại để bạn tham khảo:
| Chủ đầu tư | Ông Nguyễn Việt Anh |
| Địa chỉ | Hải Phòng |
| Loại hình | Biệt thự hiện đại |
| Số tầng | 3 |
| Mặt tiền | 13.3m |
| Tổng diện tích | 119m2 |
| Đơn vị thực hiện | Sơn Hà Group (#SHAC) |
| Công năng |
|
Mặt tiền căn biệt thự mái Nhật gây ấn tượng với cánh cửa màu gỗ trầm chạm trổ hoa văn tinh xảo. Ngoài ra, bố trí cây cảnh ở bên ngoài khiến không gian trông rộng rãi, thoáng mát tạo cảm giác thư giãn cho gia chủ.

Đến với căn biệt thự này, đội ngũ chúng tôi đã có cách tiếp cận khác trong phương án phân chia công năng. Cụ thể, chúng tôi tập trung bố trí công năng ở tầng 1 và tầng 2, còn tầng 3 chủ yếu dùng để làm phòng kho. Hãy cùng xem qua bản vẽ ở mỗi tầng:




Liệu căn biệt thự hiện đại có thể đáp ứng không gian sống xanh, hài hòa với thiên nhiên? Sở hữu đội ngũ kiến trúc sư giàu kinh nghiệm, Sơn Hà Group đã thiết kế căn biệt thự mái Nhật với kiến trúc độc đáo, bắt mắt giữa lòng thành phố Hải Phòng. Hệ thống lan can kết hợp cùng cây cảnh khiến căn nhà trở nên thanh lịch, nhẹ nhàng, tạo cảm giác dễ chịu cho gia chủ.
Dưới đây là thông tin chi tiết về căn biệt thự trang nhã để bạn tham khảo:
| Chủ đầu tư | Ông Hoàng Văn Thúy |
| Địa chỉ | Hải Phòng |
| Loại hình | Biệt thự hiện đại |
| Số tầng | 3 |
| Mặt tiền | 15 m |
| Tổng diện tích | 375m2 (15m x 25m) |
| Đơn vị thực hiện | Sơn Hà Group (#SHAC) |
| Công năng |
|
Căn biệt thự 3 tầng mái Nhật tạo hiệu ứng thị giác mạnh khi bố trí chiếc cổng màu trắng tối giản cùng hệ thống tường rào bao quanh. Đặc biệt, cửa kính cường lực cũng được tận dụng một cách thông minh, góp phần khiến căn nhà trông bề thế, sang trọng.

Phương án phân chia công năng phải luôn được tính toán chu toàn, cẩn thận để đáp ứng tốt nhất nhu cầu sinh hoạt của gia chủ. Dưới đây là cách chúng tôi phân chia công năng cho mỗi tầng:



Với gam màu trắng tinh tế, nội thất của biệt thự mái Nhật 3 tầng được bày trí theo phong cách trẻ trung, thanh lịch. Đặc biệt, cách sắp xếp ban công, cửa kính nối tiếp đã tạo nên tổng thể hài hòa với không gian sống. Dưới đây là phương án trang trí nội thất chi tiết từng tầng, từng phòng chức năng của biệt thự. Mời bạn cùng tham khảo.






Căn biệt thự tiếp theo chúng tôi muốn giới thiệu đến bạn mang đậm nét cổ điển khác lạ so với thiết kế tối giản của phong cách hiện đại. Lối kiến trúc tân cổ điển chủ yếu tập trung phối hợp các chi tiết nghệ thuật độc đáo nhằm khắc họa vẻ đẹp cổ kính. Ngoài ra, các cột trụ được tính toán tỉ mỉ, bố trí thông minh đã tạo hiệu ứng thẩm mỹ bắt mắt. Mời bạn cùng khám phá căn biệt thự 3 tầng mái Nhật này nhé.
Dưới đây là thông tin chi tiết về căn biệt thự hoài cổ để bạn tham khảo:
| Chủ đầu tư | Ông Phạm Thái Hùng |
| Địa chỉ | Hải Phòng |
| Loại hình | Biệt thự tân cổ điển |
| Số tầng | 3 |
| Mặt tiền | 13 m |
| Tổng diện tích | 260m2 ( 13 x 20) |
| Năm thực hiện | 2021 |
| Đơn vị thực hiện | Sơn Hà Group (#SHAC) |
| Công năng |
|
Mặt tiền căn biệt thự đậm chất kiến trúc Pháp khi kết hợp cửa ra vào màu gỗ trầm và hệ thống cửa kính viền đen. Đặc biệt, kết cấu mái chữ A tạo hiệu ứng thị giác đa chiều, thống nhất khiến ngoại thất thêm ấn tượng, độc đáo.

Phương án bố trí công năng để gia chủ có thể tiện lợi sinh hoạt đã được chúng tôi đề ra. Hãy cùng nhìn qua cách bố trí cho từng tầng của căn biệt thự:



Với tiêu chí ưu tiên chất lượng, vật liệu bố trí trong căn biệt thự 3 tầng mái Nhật được Sơn Hà Group chọn lọc kỹ lưỡng, ví dụ như: gỗ, gạch, thạch cao có độ bền cao. Khéo léo sử dụng gam màu trắng sang trọng, vẻ hiện đại pha lẫn nét cổ điển đã được thể hiện một cách rõ nét, ấn tượng.
Bên cạnh kết cấu, cách bố trí công năng cho căn biệt thự 3 tầng mái Nhật, gia chủ cũng phải lưu ý, cân nhắc các yếu tố sau khi tiến hành thi công:

Với kinh nghiệm thi công đa dạng các loại hình kiến trúc, đặc biệt là biệt thự 3 tầng mái Nhật, Sơn Hà Group là cái tên uy tín, quen thuộc với nhiều gia chủ trên khắp cả nước. Trong suốt những năm hoạt động, chúng tôi luôn cải thiện, đổi mới để phục vụ khách hàng một cách tốt nhất.

Chúng tôi tự tin sở hữu đội ngũ kiến trúc sư có trình độ chuyên môn, nghiệp vụ cao, thái độ tâm huyết với công việc đảm bảo sẽ khiến khách hàng hài lòng, vừa ý. Ngoài ra, đến với Sơn Hà Group, quý khách còn được tư vấn một cách nhiệt tình để lựa chọn mẫu thiết kế ưng ý, phù hợp với mong muốn.
Trên đây là toàn bộ thông tin chúng tôi đã tổng hợp về TOP 6+ biệt thự 3 tầng mái Nhật hiện đại xu hướng vào năm 2023. Thông qua bài viết này, hy vọng bạn đã có được nhiều sự gợi ý để lựa chọn cho mình mẫu biệt thự phù hợp. Hãy liên hệ ngay với Sơn Hà Group nếu có thắc mắc nhé!
>>>> TÌM HIỂU THÊM: 50 mẫu biệt thự mái thái 3 tầng hiện đại theo xu hướng
Ảnh khác
Bình luận