Nếu phải kể tên loại hình thiết kế kiến trúc nào đa dụng, dễ triển khai và hoàn thiện nhất chắc chắn phải nhắc đến thiết kế nhà phố, nhà ống. Đây cũng là loại hình công trình mà nhiều chủ đầu tư quan tâm và đầu tư vì sự nhanh chóng, tiện dụng và đa dạng phong cách thiết kế. Trong những ngày cuối cùng của năm 2021, Sơn Hà Group gửi đến bạn một thiết kế nhà phố kiểu hiện đại, ấn tượng với những đường nét thiết kế thông minh. Cùng tìm hiểu công trình sau và biết đâu bạn sẽ có những gợi ý tuyệt vời để ứng dụng trong công trình tương lai của mình đấy!
NỘI DUNG CHÍNH
Như các thiết kế nhà ống hiện đại khác, thiết kế mặt tiền của căn nhà phố lần này vẫn là kết quả của việc chồng các khối hình hộp lên nhau, tạo nên chiều sâu và sự tinh tế cho thiết kế. Bằng việc nghiên cứu kỹ lưỡng địa hình và địa thế của mặt bằng đất, kết hợp cùng cảnh quan xung quanh, Sơn Hà Group đã chọn lựa những tỷ lệ hình khối thiết kế hoàn hảo. Có thể thấy việc sắp xếp các khối hình học theo các tỷ lệ được nghiên cứu sẵn, giúp mặt tiền của ngôi nhà tạo được hiệu ứng thị giác đẹp mắt, thu hút và có tính nghệ thuật hơn.

Bên cạnh các đường nét và các góc vuông mạnh mẽ, Sơn Hà Group cũng đưa vào đây các đường thẳng song song và các đường nan quạt trên mái tầng tum của nhà phố. Những chi tiết này khiến tổng quan ngôi nhà bớt đi sự khô khan mà thay vào đó là sự trẻ trung, năng động, cuốn hút hơn, mang đậm hơi thở của tương lai.

Ngoài ra, để nhấn mạnh sự tinh tế và nét kiến trúc tối giản, chúng tôi sử dụng các màu sắc tông gỗ ấm như: nâu, trắng, đen,... Với các chi tiết màu sắc được phối cùng nhau như này, mặt tiền 6m của nhà phố mang đến cảm giác thanh lịch và sang trọng.
Ngoài ra còn cần phải kể đến cách kết hợp các loại vật liệu trong thiết kế nhà lần này, các vật liệu bao gồm: bê tông, gạch nhám, đá tự nhiên, kính cường lực, khung nhôm thép tĩnh điện, gỗ công nghiệp,… đều làm tốt vai trò của mình giúp làm nổi bật cá tính của ngôi nhà.
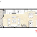
Bên cạnh phương án thiết kế thông minh ngoài mặt tiền, về phía công năng sử dụng phía trong, Sơn Hà Group cũng chứng minh sự chuyên nghiệp của mình bằng phương án chia mặt bằng phù hợp. Với diện tích một sàn là 85m2, toàn bộ 3 sàn và 1 tầng tum của tòa nhà được lên phương án như sau:
Tổng quan cách bố trí các không gian trong công trình được diễn giải qua các hình ảnh mặt bằng dưới đây:




Trên đây là hồ sơ thiết kế nhà ống 3 tầng với 4 phòng ngủ cùng công năng tiện nghi chúng tôi đã bàn giao cho chủ đầu tư tại Hải Phòng. Trong các bài viết sau chúng tôi sẽ tiếp tục cập nhật những mẫu thiết kế nhà phố được trình làng mới nhất. Cảm ơn bạn đã theo dõi bài viết.
Ảnh khác