Mẫu thiết kế biệt thự 4 tầng Pháp đang được đông đảo mọi người chú ý, bởi nó mang một vẻ đẹp cổ điển và tinh tế vốn có. Bên cạnh đó, những mấu biệt thự theo lối phong cách Châu Âu cổ xưa pha một chút hiện đại. Tùy theo từng mẫu thiết kế, lối phong cách của biệt thự cũng sẽ thay đổi theo. Hãy cùng đến với bài viết của Sơn Hà Group để bạn có thể chọn cho mình mẫu biệt thự ưng ý, thông qua bài viết dưới đây.
>>> GỢI Ý: 100 mẫu biệt thự 4 tầng đẹp, hiện đại và đẳng cấp
NỘI DUNG CHÍNH
Thông tin chi tiết mẫu biệt thự:
Đến với mẫu thiết kế biệt thự đầu tiên này, bạn sẽ được chiêm ngưỡng một lâu đài cổ Pháp nằm giữa phố phường sầm uất. Căn biệt thự nổi bật với phần mái làm từ đá xanh cao cấp, một vật liệu vô cùng đẳng cấp. Màu xanh của mái nổi bật hơn khi được kết hợp với màu tường vàng trắng, có thể nói đây là sự kết hợp đẹp mắt và hài hào nhất.

Hệ thống mái vòm của mẫu biệt thự kiểu Pháp tạo cảm giác uy nghi và sang trọng, những chi tiết lạ mắt được thi công trên mái cũng khá đặc biệt. Phần tường bên ngoài biệt thự được chạm khắc tinh xảo và công phu, những hình ảnh mang đậm phong cách Pháp cổ điển.

Dưới đây là những bản vẽ công năng của các tầng, mời bạn điểm qua một vài chi tiết để có thể nắm bắt được cấu trúc sơ bộ của căn biệt thự này. Các phòng chức năng được bố trí đều ở tất cả các tầng, tầng nào cũng được sắp xếp một cách logic và đầy đủ những phòng khác nhau.








Thông tin chi tiết mẫu biệt thự:
Đây cũng là một thiết kế mái vòm cao cấp, nhưng màu sắc có sự khác biệt so với mẫu mái vòm ở trên. Gam màu vàng trắng được dùng để sơn bên ngoài tạo cảm giác tinh tế và sáng sủa cho căn biệt thự. Những chiếc cửa gỗ cao cấp với phần thiết kế khung cửa đa dạng, mỗi vị trí cửa có phần tạo hình khác nhau, điều này đã tạo điểm nhấn cho mặt tiền của biệt thự.

Biệt thự có phần cầu thanh lộ thiêng bên cạnh đem lại sự dễ dàng trong việc di chuyển, và tạo cho căn nhà thêm phần bắt mắt hơn. Bên cạnh đó, biệt thự 4 tầng này còn có gara để xe ngay tầng trệt, điều này giúp cho việc lấy xe ra vào thuận tiện hơn rất nhiều. Những chiếc bạn công xung quanh biệt thự được chạm khắc công phu và tỉ mỉ, với những chi tiết hết sức mới lạ. Có thể nói, đây là điểm nhấn nổi bật cho toàn bộ căn biệt thự này.

Dưới đây là bản vẽ công năng của từng tầng chi tiết, mời bạn lướt qua những hình ảnh dưới đây để có thể hiểu rõ hơn về cách bố trí của biệt thự. Đến với tầng 1, bạn sẽ thấy gần như tầng đầu tiên này sẽ được tận dụng hết tất cả các ngốc ngách. Ở đây có tất cả những phòng chức năng, ngoài việc dùng làm gara để xe thì có phòng kho, phòng ngủ giúp việc, và phòng karaoke.




Thông tin chi tiết mẫu biệt thự:
Đây là một trong những thiết kế biệt thự 4 tầng phong cách lâu đài Pháp cổ điển. Phần mái của biệt thự có sự khác biệt trong cấu trúc hơn so với những thiết kế cùng tên, bộ phận mái trên cùng vẫn là dáng mái tròn đực trưng nhưng điều khác biệt ở đây, chính là phần mái hình lậ phương ở dưới. Kiểu thiết kế mái dạng này đã tạo điểm nhấn đặc sắc cho biệt thự. Phần khung tường của hai cửa ra vào được sơn màu đồng nổi bật, kiểu tường này đã điểm xuyết cho bức tường màu vàng trắng thêm phần sang trọng hơn.

Các mặt xung quanh của biệt thự được tối giản hóa so với mặt tiền chính, nhưng chúng vẫn được thiết kế hài hòa với tổng thể của biệt thự. Phần tường của biệt thự được sơn với hai gàm màu trắng và vàng nhạt, điều này đã tạo sự tinh tế và sang trọng cho biệt thự. Khu đất của biệt thự không thiết kế tích hợp sân vườn, nhưng vẫn có các khhu vực bố trí bồn hòa và cây cảnh xung quanh tạo sự bắt mắt cho căn biệt thự.

Cách bố trí của các phòng trong biệt thự được sắp xếp logic và hài hòa với nhau, những không gian riêng được thiết kế vô cùng đẳng cấp và xa xỉ. Chất liệu nội thất cũng hết sức đắt đỏ và chi tiết gia công vô cùng tỉ mỉ, đây là căn biệt thự hứa hẹn sẽ mang lại sự thời thượng trong thời gian tới.



Thông tin chi tiết mẫu biệt thự:
Đây là mẫu biệt thự 4 tầng Pháp phong cách lâu đài cổ điển, với những chi tiết hết sức lộng lẫy và nguy nga. Phần mái vòm luôn là đặc trưng của loại thiết kế này, những ở biệt thự dưới đây phần mái cách điệu với nhau theo từng tầng và mỗi tầng có kiểu dáng mái riêng. Những khung cửa chính và cửa sổ cũng được thiết kế khác nhau theo từng khu vực, vừa có cả cửa gỗ và cửa kính tạo sự đa dạng cho căn nhà.

Biệt thự được thiết kế nhiều cửa ra vào và cùng với những bậc thang sang trọng và đẹp mắt, những chiếc cầu thang được thiết kế như lâu đài trong chuyện cổ tích. Các khu vực cửa ra vào có những nét trang trí đặc trưng riêng với nhiều chi tiết bắt mắt, các loại đèn chùm với hoạt tiết đổ điển được treo lơ lửng trước cửa. Điều này đã tạo nên không gian biệt thự vô cùng nguy nga và đẳng cấp.

Bản vẽ mặt bằng công năng cho từng tầng của biệt thự với cách sắp xếp khoa học, và vô cùng đẹp mắt. Phần thiết kế lúc nào cũng đảm bảo có những khoảng trống ở sảnh, điều này sẽ tạo cảm giác rộng rãi và sang trọng cho căn nhà.






Thông tin chi tiết mẫu biệt thự:
Căn biệt thự được sơn hai gam màu vàng trắng khá tinh tế và nổi bật, không gian xung quanh biệt thự được thiết kế đơn giản và hài hoà với cả tổng thể. Những khung cửa có hình dáng đồng nhất với nhau và màu sắc gỗ của chúng nổi bật lên với tông nền của biệt thự. Gam màu vàng nhạt và trắng được sơn lên biệt thự khiến cho tổng thể trở nên tinh tế và sang trọng, phần mái vòm màu xanh đậm nổi bật lên hẳn trên nền tường trắng.

Phần cửa chính có sự bắt mắt hơn khi được thiết kế với màu đồng cổ điển và sang trọng. Đây là một trong những gam màu tạo sự cổ điển cho bản thiết kế này, bên cạnh đó là những chiếc mái vòm xanh đậm cao cấp tạo sự nguy nga cho cả căn biệt thự.

Bản vẽ công năng tầng 1 mới vào đã đầy đủ những phòng chức năng, cách bố trí khoảng sảnh trống của tầng và các phòng vô cùng hợp lý. Điều này đã tạo sự di chuyển dễ dàng và thuận tiện hơn, bên cạnh đó diện tích các phòng cũng rộng rãi và thoáng mát mặc dù vẫn gồm sảnh tầng 1 và đại sảnh.






>>>> THAM KHẢO NHANH: 8 mẫu biệt thự 4 tầng tân cổ điển sang trọng, hot nhất 2022
Thông tin chi tiết mẫu biệt thự:
Đây là mẫu biệt thự cổ điển Pháp có phần diện tích khá lớn, nên phần thiết kế sẽ có nhiều chi tiết nổi bật và cầu kỳ hơn. Gam màu chính của biệt thự là gam màu nóng lạnh kết hợp với nhau, điều này đã tạo nên sự hài hòa về mặt tổng thể cho biệt thự. Bên cạnh đó, thiết kế mái vòm màu xanh tạo sự nổi bật cho căn nhà.

Phần cổng chính và phụ được thiết kế khá công phu, các bức tường xung quanh được thi công vô cùng cầu kỳ với những chi tiết đẹp mắt. Chất liệu sắt của cổng được thiết kế vô cùng sang trọng và đẳng cấp, những kiểu dáng uốn cong đặc biệt và tinh tế. Có thể nói phần mặt tiền với những chi tiết cổng này, đã khiến cho biệt thự trở nên sang trọng và nguy nga.

Dưới đây là những hình ảnh thiết kế nội thất bên trong căn nhà, và mỗi tầng sẽ có những phong cách thiết kế riêng nhưng sẽ vẫn đảm bảo đồng nhất về mặt tổng thể của biệt thự. Cách bố trí các phòng chức năng khá hợp lý và logic, điều này đã giúp cho tổng thể căn nhà trở nên hài hòa và đẹp mắt hơn.


Thông tin chi tiết mẫu biệt thự:
Đây là mẫu biệt thự 4 tầng Pháp được thiết kế theo lối tân cổ điển, một phong cách tạo sự thanh thoát và xưa cổ cho biệt thự. Gam màu được chọn để sơn lên biệt thự là màu trắng ngà, một gam màu nhã nhặn và vô cùng tinh tế. Phần áp mái được thiết kế khá đẹp mắt với những chiếc cửa sổ nhỏ, và màu sắc tầng áp mái cũng nổi bật hẳn.

Những chiếc ban công được sơn màu đen tuyền, điều này đã làm chúng nổi bật lên hẳn tông màu của biệt thự. Phần cửa sổ của các tầng được thiết kế với khung trắng chữ nhật, tạo sự đẳng cấp cho căn nhà. Bên cạnh đó, biệt thự được bố trí sân vườn bắt mắt và hiện đại.

Bản vẽ của các tầng trong biệt thự được bố trí khoa học và sắp xếp hợp lý, đặc biệt phòng ăn được bố trí ở tầng 4. Điều này đã tạo nên sự khác biệt trong thiết kế của biệt thự, các tầng còn lại vẫn được sắp xếp theo lối thiết kế phổ biến để gia chủ đi lại dễ dàng hơn.




Thông tin chi tiết mẫu biệt thự:
Đây là một bản thiết kế biệt thự 4 tầng Pháp đậm chất lâu đài cổ điển, những chi tiết xung quanh căn nhà đã khiến cho chúng ta như lạc vào một cuốn truyện cổ tích. Sự nổi bật của thiết kế chính là phần mái vòm xếp tầng, mỗi tầng từ thấp lên cao sẽ có một kiểu mái vòm khá nhau. Những chi tiết mái được chăm chút tỉ mỉ từng công đoạn, và chi tiết hết sức phức tạp. Phần cửa chính và cửa phụ của căn biệt thự 4 tầng được sơn màu vàng đồng, điều này đã tạo sự nổi bật cho phần cửa bên ngoài biệt thự.

Biệt thự được thiết kế phần khuôn viên hết sức đẹp mắt, có cả hồ nước và một chỗ ngồi với mái vòm sang trọng. Đây hứa hẹn là một bản thiết kế được ưa chuộng nhất trong những năm tới.

Không gian tầng 1 của biệt thự được tiết chế chỉ với vài phòng chức năng, có thể nói không gian tầng đầu tiên khá rộng rãi và thoáng mát. Nhưng khi bạn xem tiếp các bản vẽ của những tầng tiếp theo, thì vị trí các phòng chức năng sẽ được bố trí xen kẽ và liền mạch với nhau, điều này đã tạo sự thuận tiện khi di chuyển.






Thông tin chi tiết mẫu biệt thự:
Đây là một bản thiết kế vừa mang phong cách cổ điển, vừa mang phong cách hiện đại. Lối kiến trúc của biệt thự khá đồ sộ và nguy nga, cùng với những chi tiết cứng cáp và mạnh mẽ. Phần màu của các cửa sổ hết sức nổi bật với gam màu nâu đỏ, điều này đã tạo thêm sức hút cho căn biệt thự. Phía trên bên ngoài cửa chính còn được trang trí đèm chùm lộng lẫy, đây có thể được xem là điểm cộng tuyệt đối cho căn biệt thự này.

Phần khung sắt của ban công và khung cửa chính được sơn màu đen tuyền, những vật liệu sắt được uốn cong khá tỉ mỉ và công phu. Những chi tiết này, đã góp phần tạ nên sự cổ điển cho biệt thự 4 tầng này.

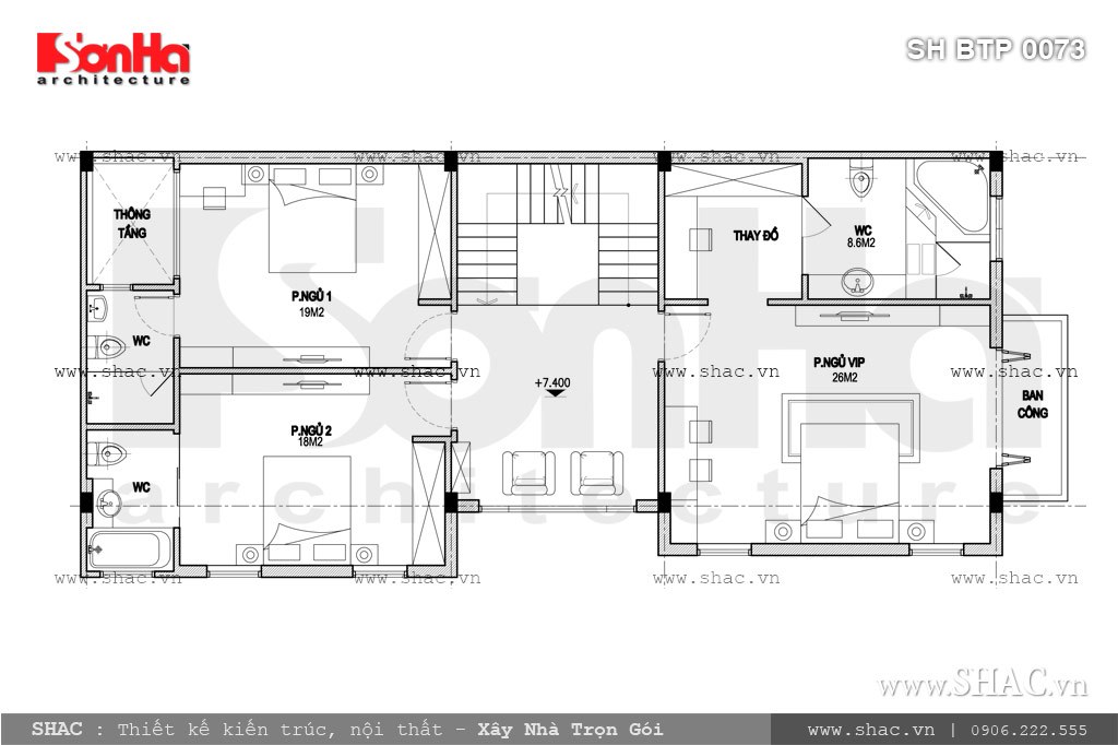
Bản vẽ công năng tầng 1 được bố trí với những chức năng cần thiết dùng để làm gara xe, hầm rượu, phòng giúp việc,... Điều này đã tạo được sự tận dụng tối đa công năng tầng 1. Khi đến với những không gian tầng trên, những phòng chức năng được xuất hiện nhiều hơn, mỗi tầng sẽ luôn được đảm bảo có số phòng tối thiểu. Điều này sẽ vừa đáp ứng được sự tiện nghi khi sử dụng, và vừa tạo sự dễ dàng khi di chuyển giữa các khu vực.





Thông tin chi tiết mẫu biệt thự:
Thiết kế biệt thự theo phong cách lâu đài cổ điển Pháp đang khá thịnh hành trong những năm gần đây. Những nhà biệt thự 4 tầng theo lối cổ điển này thường khá đẳng cấp. Nhìn từ bên ngoài biệt thự, tòa lâu đài này toát lên được vẻ lịch thiệp và tráng lệ. Những chi tiết từ bức tường cho đến những chiếc cửa sổ luôn được thi công đậm chất Pháp, màu sắc của biệt thự cũng phải hướng theo lối cổ điển nhưng vẫn đảm bảo sự hài hòa nhất cho từng nét văn hóa mỗi nơi.

Đây là căn biệt thự mặt phố nhưng vẫn đảm bảo các yếu tố của phong cách Pháp cổ điển, những chi tiết điêu khắc trên tường và màu sơn đã tạo nên sự bắt mắt và nổi bật cho biệt thự này.

Không gian bên trong căn biệt thự là sự kết hợp tinh tế giữa lối phong cách vừa hiện đại, vừa cổ điển. Các phòng chức năng được thiết kế với những gam màu chủ đạo khác nhau, nhưng vẫn luôn đảm bảo được lối phong cách của tổng thể.


Đây là mẫu biệt thự 4 tầng trường tồn với thời gian, mẫu thiết kế của nó sẽ không bao giờ lỗi thời. Chính vì vậy, bạn nên xây dựng thật kỹ càng và chắc chắn, chọn lựa móng nhà vẫn trải. Xây dựng một cách kiên cố và đảm bảo nhất, nhưng chi tiết dùng để thi công khá cao cấp và sang trọng. Chính vì vậy, bạn cần phải bảo vệ chúng trước những tác động của ngoại lực hoặc sự biến đổi của môi trường xung quanh. Các hệ thống biệt thự kiểu Pháp luôn có công năng đón gió và thông khí tự nhiên, điều này sẽ giúp các thành viên trong nhà bạn được tận hưởng luồng không khí trong lành.

Những đường nét của thiết kế ngoại thất Pháp rất tinh tế và đẳng cấp, mỗi sản phẩm đều được gia công tỉ mỉ và độc đáo. Phong cách cổ điển đặc trưng của Pháp đã khiến cho những món đồ ngoại thất trở nên đẹp đẽ hơn, những chi tiết vô cùng mềm mại và thanh thoát. Bên cạnh đó, chất liệu làm ra chúng khá cao cấp và đắt đỏ, vì thế bạn nên xác định phong cách mà mình mong muốn rồi từ đó chọn mua sản phẩm.

Kiến trúc Pháp là đặc trưng của sự hoài niệm và cổ điển, những chi tiết có đường nét mềm mại và vô cùng cuốn hút. Những món vật liệu mang phong cách cổ điển đậm chất Pháp, dường như khi xây nhà theo lối này bạn đã đem một đất nước Pháp thu nhỏ đến Việt Nam.

Phong cách thiết kế của biệt thự đã đi theo lối cổ điển Pháp, vì vậy nội thất bên trong cũng từ đó mà đẳng cấp hơn. Những món đồ trang trí trong từng phòng chức năng khá cao cấp, và tinh tế. Những vật dụng trang trí được đa số từ gỗ tự nhiên, vì đây là chất liệu thời thượng nhất. Các sản phẩm nội thất luôn được chỉnh chu từng chi tiết, và công năng vô cùng tiện nghi.

Yếu tố địa hình luôn là điều quan trọng nhất khi xây dựng biệt thự, vì diện tích càng rộng rãi và có tính mỹ quan cao thì khi xây nên biệt thự, nó mới thể hiện được đẳng cấp và giá trị. Việc cân nhắc lựa chọn khu đất trườn khi xây biệt thự là điều vô cùng cần thiết, yếu tố này sẽ giú cho bạn có được vị trí biệt thự không chỉ đẹp mắt mà còn hợp phong thủy.

Theo phong tục người Việt từ xưa đến nay, yếu tố phong thủy luôn gắn liền với việc xây nhà. Khi bạn muốn thi công một căn biệt thự, bạn nên xem tuổi và mệnh của mình một cách rõ ràng và chuẩn xác. Từ đó, yếu tố phong thủy sẽ magn đến cho bạn nhiều điều tốt đẹp và may mắn về sau.

Khi bạn muốn lên ý tưởng xây dựng biệt thự 4 tầng Pháp thì bạn nên dự trù kinh phí đầu tiên. Yếu tố này rất quan trọng, vì khi bạn xác định được ngân sách bỏ ra, từ đó bạn sẽ vạch ra được những điều cần làm tiếp theo. Và hơn hết, nó sẽ tránh việc phát sinh các khoản chi phí không mong muốn về sau.

Vị trí mặt tiền biệt thự Pháp khá quan trọng, nó sẽ quyết định đến sự thành công của quá trình xây dựng căn biệt thự. Bạn nên lựa chọn những chi tiết và chất liệu thời thượng, cùng với những hoa văn đẹp mắt và độc đáo. Những chi tiết đẹp nhất, sẽ được bày trí ngay mặt tiền của căn nhà. Điều này sẽ giúp cho biệt thự của bạn trở nên thời thượng và lộng lẫy hơn.

Công ty Cổ phần Tư vấn Xây dựng Sơn Hà (SHAC) được thành lập từ năm 2003, là sự nỗ lực không ngừng nghỉ của tất cả những cống hiến vô cùng to lớn của nhân viên từ trước đến nay. Trong quá trình xây dựng và phát triển, SHAC đã trải qua không ít gian khổ, và thậm chí là đánh đổi nhiều thứ. Hiện tại, SHAC tập trung vào những lĩnh vực chính như: Xây nhà trọn gói; Thiết kế kiến trúc và nội thất; Thi công hạng mục hoàn thiện; Sản xuất, thi công đồ nội thất gỗ.
Những mẫu mã thiết kế kiểu biệt thự đẹp ở Sơn Hà Group sẽ không làm bạn thất vọng. Đội ngũ kiến trúc dày dặn kinh nghiệm, cùng với đó là hệ thống thiết bị vật tư cao cấp và uy tín. Chúng tôi cam kết đem đến cho bạn một tổ ấm không chỉ tiện nghi và thoải mái, mà còn là một sự thời thượng và sang trọng bậc nhất.

Thông qua bài viết trên, bạn cũng đã phần nào đọc được những thông tin hữu ích về thiết kế biệt thự 4 tầng Pháp. Đây là kiểu dáng biệt thự được ưa chuộng trên thị trường hiện nay. Chính vì vậy, để bạn có thể chọn lựa cho mình một bản thiết kế đẹp nhất và tiện nghi nhất, thì hãy đến với Sơn Hà Group. Nơi đây, chúng tôi hội tụ đủ những giá trị của một căn biệt thự đẹp mà bạn mong muốn, và sẵn sàng đáp ứng tốt yêu cầu của bạn. Đến với chúng tôi để có những trải nghiệm tuyệt vời nhất. Cảm ơn bạn đã đọc hết nội dung này. Hãy liên hệ với chúng tôi nếu bạn có thắc mắc.
>>>> BÀI VIẾT LIÊN QUAN: TOP 3 biệt thự 4 tầng 100m2 tiện nghi, đẹp nhất 2022
Ảnh khác
Bình luận