Nếu bạn đang tìm kiếm ý tưởng thiết kế biệt thự sang trọng và trẻ trung thì chúng tôi (Công ty Cổ phần Tư vấn Xây dựng Sơn Hà, SHAC) xin vui mừng chia sẻ rằng hồ sơ của mẫu nhà biệt thự 3 tầng diện tích 150m2 hiện đại chúng tôi giới thiệu trong nội dung bài viết hôm nay của chuyên mục biệt thự hiện đại SHAC sẽ hỗ trợ hiệu quả cho bạn đọc trong việc hiện thực hóa mong muốn này.
>>>> XEM NGAY: Thiết kế nhà biệt thự 3 tầng

NỘI DUNG CHÍNH
Sở dĩ nhận định trên được chúng tôi đưa ra bởi SHAC đã tổng hợp được những đánh giá tích cực của chủ đầu tư, đối tác và đồng nghiệp của chúng tôi trên khắp 3 miền đất nước về phương án thiết kế biệt thự hiện đại 3 tầng đẹp SH BTD 0037. Trong đó, đánh giá tích cực nhất là dành cho kiến trúc ngoại thất lạ mắt với gam màu có chiều sâu mà các kiến trúc sư SHAC đã sử dụng để tảng trí mặt tiền. Cùng với đó là sự thoáng đãng trong thiết kế nội thất của ngôi biệt thự dựa trên phương án bố trí công năng hòa hòa và khoa học tạo nên mẫu biệt thự hiện đại Nhật Bản đẹp.
Dưới đây, chúng tôi xin giới thiệu thêm một số phối cảnh của công trình từ những góc view khác nhau để bạn đọc có được hình dung rõ nét, sinh động và đa chiều về phương án thiết kế biệt thự 3 tầng 2 mặt tiền của ngôi biệt thự hiện đại diện tích 150m2 này:



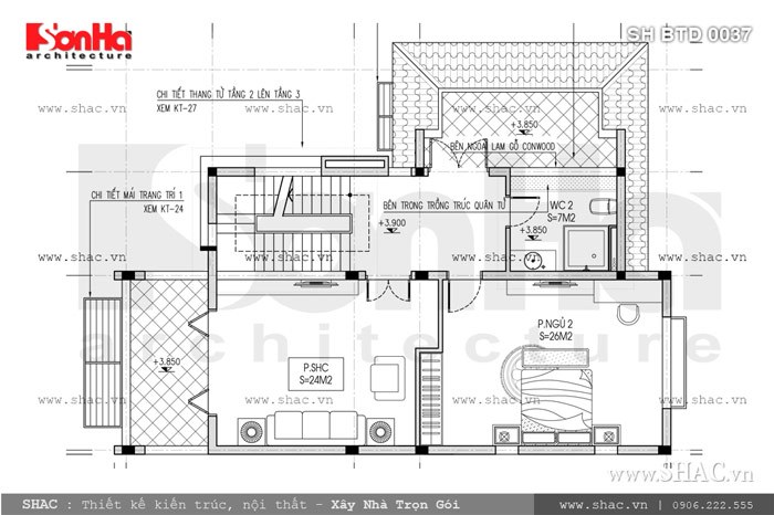
Như chúng tôi đã trao đổi, sự thành công của mẫu nhà biệt thự 2 mặt tiền đẹp này không thể thiếu cách bố trí công năng hợp lý. Trao đổi thêm về giải pháp thiết kế ngôi nhà, chủ đầu tư cho biết thêm rằng họ thấy hoàn toàn đúng đắn khi dành diện tích không nhỏ để làm thông tầng cho ngôi nhà với trang trí cây xanh và tiểu cảnh đẹp mắt. Bên cạnh việc sử dụng các vật liệu như kính,… giải pháp này giúp không gian dường như càng được mở rộng thêm và hoàn toàn thuyết phục chủ đầu tư.
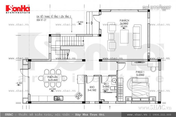
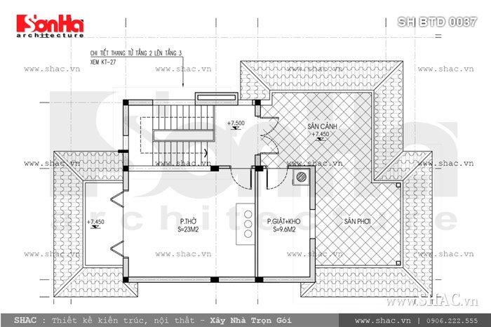
Để có thêm chi tiết về cách bố trí công năng của ngôi biệt thự hiện đại, chúng tôi mời bạn đọc tham khảo các hình ảnh dưới đây:



Chúng tôi cảm ơn bạn đọc đã theo dõi nội dung bài viết. SHAC cũng xin cảm ơn sự tin tưởng hợp tác và nhiệt thành ủng hộ quý vị đã dành cho chúng tôi trong suốt thời gian qua để tạo nên những mẫu nhà chất lượng trong thi công và độc đáo trong thiết kế.
Mọi chi tiết xin liên hệ:
CÔNG TY CỔ PHẦN TƯ VẤN XÂY DỰNG SƠN HÀ (SHAC)
Trụ sở chính: Số 55, đường 22, KĐT Waterfront City, Lê Chân, Hải Phòng
Văn phòng đại diện
Ảnh khác
Bình luận