Kiến trúc biệt thự hiện đại đã và đang là loại kiến trúc nhà ở được ưa chuộng nhất thời điểm hiện tại. Nhiều chủ đầu tư yêu thích thiết kế hiện đại bởi những tiện nghi cùng sự tối giản, sang trọng mà loại kiến trúc này mang lại. Với loại hình thiết kế này, các công trình đều mang sự tinh tế, trang nhã và bắt kịp xu hướng thiết kế của thời đại mới đồng thời tập trung nhiều vào trải nghiệm tiện nghi hơn là các chi tiết trang trí rườm rà. Hôm nay hãy cùng Sơn Hà Group tìm hiểu trong bài viết này nhé!
NỘI DUNG CHÍNH
Như đã nói phía trên, phong cách hiện đại hiện nay đang là phong cách được nhiều chủ đầu tư lựa chọn nhất nhì thời điểm hiện tại. Những điểm mạnh của phong cách này đó chính là thiết kế tối giản, dễ dàng thi công, hợp với đại đa số gu thẩm mỹ của nhiều người và đặc biệt là bắt kịp xu hướng thiết kế trên thế giới. Chính vì thế chủ đầu tư công trình lần này đã đặc biệt lựa chọn phong cách này và mong muốn Sơn Hà Group sẽ triển khai và thi công công trình này.

Nhận được bài toán từ chủ đầu tư, đội ngũ kiến trúc sư Sơn Hà Group đã lên phương án thiết kế thi công trọn gói và nhận được sự hài lòng không chỉ từ gia chủ mà còn từ đại gia đình cùng chung sống trong ngôi nhà này. Sau đây hãy cùng đi vào tìm hiểu cách chúng tôi thiết kế và bố trí công năng trong công trình ngày hôm nay nhé!
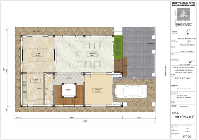
Mặt tiền là thiết kế quan trọng nhất trong bất cứ công trình nào, dù là nhà ở dân dụng hay các công trình nhà hàng, khách sạn, công trình công cộng. Chính vì thế các kiến trúc sư Sơn Hà Group đã sử dụng nhiều phương án và kiểu thiết kế khác nhau để hoàn thiện được bản hoàn chỉnh cuối cùng gửi tới khách hàng.

Thiết kế theo ngôn ngữ hiện đại, phần mặt tiền của công trình gây ấn tượng với kiểu kiến trúc bất đối xứng, tạo cảm giác tăng tiến trong việc sử dụng các hình khối. Cùng với việc sử dụng xen kẽ các mảng kính cường lực, kết hợp với các mảng xanh cùng các mảng hình khối bê tông được xử lý đặc biệt để tạo nên sự độc đáo riêng biệt, tất cả tạo nên không khí hiện đại, thanh lịch và độc đáo riêng biệt của công trình ngày hôm nay.

Với thiết kế 3 tầng, sự sắp xếp các hình khối cũng được tính toán kỹ càng để tạo hiệu ứng thị giác bề thế và hiên ngang, đồng thời lợi dụng các mảng thiết kế bất đối xứng để tạo ra hiệu ứng thị giác thú vị cho công trình. Với thiết kế như vậy, Sơn Hà Group tin rằng đã mang lại cho chủ đầu tư một kiến trúc bắt mắt, phù hợp và hài hòa với nhu cầu sử dụng của cả gia đình.



Về màu sắc phía trong công trình, thiết kế biệt thự hiện đại ngày hôm này sử dụng các tông màu tương phản với nhau bao gồm trắng, xám ghi, màu gỗ tự nhiên. Tất cả đều là những tông màu trung tính nhưng mang sắc thái tương phản, tạo nên chiều sâu và sự độc đáo cho cả công trình. Cách sử dụng màu sắc linh hoạt như này là một ý tưởng hay cho các chủ đầu tư lựa chọn ứng dụng trong các công trình của mình trong tương lai.
Bên cạnh thiết kế kiến trúc, việc bố trí công năng sử dụng cũng đóng vai trò quan trọng không kém cho không gian nhà ở. Một ngôi nhà ở tiện nghi, đa dụng sẽ là nơi tìm về hoàn hảo, giúp hoàn thiện cuộc sống tròn vẹn. Sau đâu là cách mà Sơn Hà Group bố trí công năng sử dụng trong 3 tầng của ngôi nhà biệt thự hiện đại ngày hôm nay:

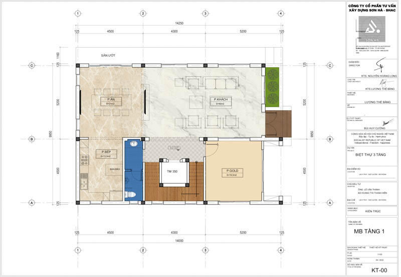
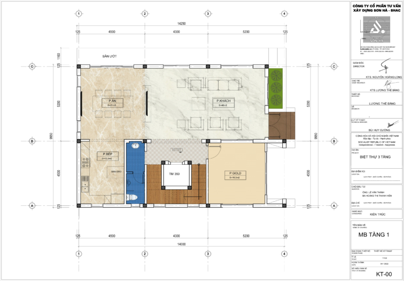
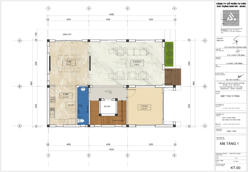
Như trong bản vẽ, toàn bộ mặt bằng tầng 1 được dành cho không gian phòng khách, phòng bếp, phòng ăn và một phòng giải trí. Với thiết kế như vậy, toàn bộ các không gian sinh hoạt chung của ngôi nhà sẽ được bố trí tại tầng 1, mang đến sự tiện lợi và dễ dàng khi sử dụng không gian cho cả gia đình.

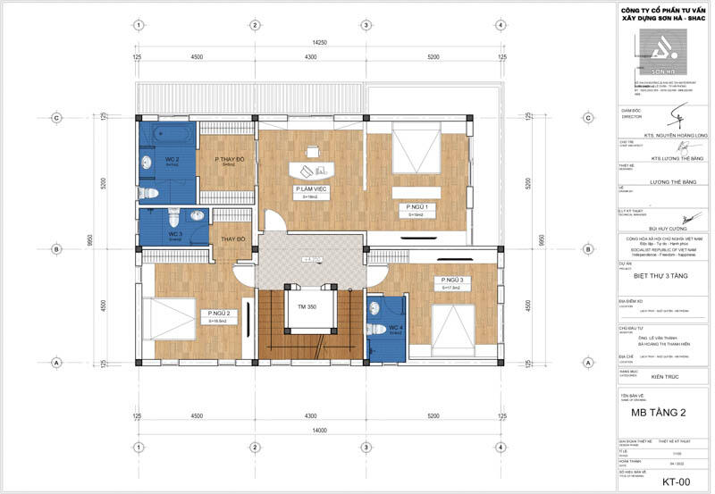
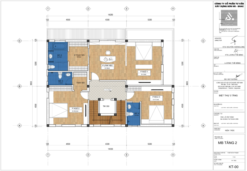
Tầng 2 là nơi bố trí các phòng ngủ của cả gia đình, với 1 phòng ngủ master thiết kế liền kề cùng phòng làm việc. Bên cạnh đó là 2 phòng ngủ khép kín khác nhau. Với cách tính toán chia công năng hợp lý, các kiến trúc sư Sơn Hà Group góp phần tối đa hóa công năng và diện tích sử dụng của từng không gian.

Cuối cùng là không gian tầng 3, với thiết kế và bài trí một phòng ngủ, còn lại là không gian phòng xông hơi, sân phơi, sân chơi, phòng thờ,... Có thể nói rằng, cách bố trí công năng sử dụng 3 tầng của ngôi nhà đã mang lại sự tiện nghi và dễ dàng sử dụng cho các không gian nói chung.

Trên đây là toàn bộ phương án thiết kê và thi công kiến trúc cũng như cách phân chia công năng sử dụng phía trong biệt thự hiện đại 3 tầng diện tích 238m2 tại Hải Phòng. Với những gợi ý kể trên, Sơn Hà Group tin rằng đã thổi một luồng gió mới vào xu hướng thiết kế biệt thự nói chung và biệt thự hiện đại nói riêng. Cảm ơn bạn đọc đã theo dõi và hẹn gặp lại tại các bài viết tiếp theo.
Ảnh khác
Bình luận