Trong thế giới kiến trúc, có những công trình không cần xây mới, nhưng vẫn đủ sức gây ấn tượng – bởi sự hồi sinh ngoạn mục từ chính nền tảng ban đầu. Đó là câu chuyện của dự án cải tạo biệt thự tân cổ điển tại khu đô thị cao cấp Vinhomes Imperia – Hải Phòng, nơi Sơn Hà Group không chỉ giữ lại vẻ đẹp cổ điển mà còn nâng tầm giá trị sống đương đại qua từng đường nét, mảng khối và công năng.
NỘI DUNG CHÍNH

Trước đây, căn biệt thự đã được thiết kế và hoàn thiện phần nội thất bởi Sơn Hà Group. Tuy nhiên, sau thời gian sử dụng, gia chủ nhận ra nhu cầu về một không gian sống mở rộng, tiện nghi hơn, phù hợp với phong cách sống hiện đại và các thế hệ trong gia đình.
"Chúng tôi không muốn phá bỏ cái hồn tân cổ điển ban đầu, nhưng cần một hơi thở mới. Một phiên bản nâng cấp, hiện đại và hợp lý hơn về công năng" – Gia chủ chia sẻ.
Chính từ mong muốn đó, đội ngũ KTS Sơn Hà đã bắt đầu hành trình cải tạo biệt thự, với sứ mệnh kết nối truyền thống – thổi hồn tân cổ hiện đại, tạo nên một công trình vừa đậm chất thẩm mỹ, vừa tối ưu tiện ích.






Phong cách tân cổ điển không còn xa lạ với các công trình kiến trúc cao cấp. Đó là sự chắt lọc tinh túy của cổ điển, hòa quyện với tính tối giản, phóng khoáng của hiện đại. Với căn biệt thự 3 tầng 1 tum tại Vinhomes Imperia, ngôn ngữ thiết kế này càng phát huy rõ nét:
Thiết kế biệt thự tân cổ điển với toàn bộ phần mặt tiền được tinh chỉnh lại theo bố cục đối xứng – cân bằng, hệ cột giữ nguyên và mở rộng ngôi nhà ra 2 bên để tạo sự bề thế cũng như tăng diện tích sử dụng cho gia đình. Các chi tiết phào chỉ được tinh giản, nhưng vẫn giữ được nét mềm mại và sang trọng.

Điểm nhấn nổi bật là việc bố trí thang máy lộ thiên phía sau nhà, yêu cầu các KTS Sơn Hà phải tính toán kỹ lưỡng để vừa đảm bảo kỹ thuật – thẩm mỹ – công năng, vừa không phá vỡ tổng thể kiến trúc.
Không gian nội thất được cải tạo theo hướng mở, tận dụng tối đa ánh sáng tự nhiên từ hai bên hông sau khi mở rộng. Tone màu trung tính ấm áp như trắng ngà – kem – vàng nhạt được sử dụng xuyên suốt, kết hợp cùng nội thất gỗ cao cấp và hệ đèn chùm pha lê sang trọng.
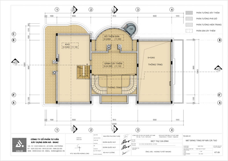
Tầng tum được kiến tạo như một ốc đảo thư giãn giữa lòng căn biệt thự – nơi hòa quyện giữa sự riêng tư và không gian mở đầy thi vị. Tại đây, các KTS Sơn Hà đã khéo léo bố trí thêm sàn cos, mở rộng mặt bằng để tích hợp các không gian chức năng như kho tiện ích, sảnh cây xanh thư giãn và khoảng thông tầng đầy ánh sáng, tạo nên một tổng thể vừa hữu dụng, vừa nghệ thuật.
Đặc biệt, thang máy lộ thiên phía sau là giải pháp tinh tế giúp việc di chuyển giữa các tầng trở nên dễ dàng – nhất là với người cao tuổi, đảm bảo sự thuận tiện mà vẫn tôn trọng trọn vẹn tính thẩm mỹ của công trình.

Trong quá trình thi công, thách thức lớn nhất nằm ở việc cải tạo cấu trúc cũ để đáp ứng yêu cầu mới, mà không phá vỡ “tinh thần” ban đầu của căn biệt thự. Đội ngũ KTS Sơn Hà Group đã làm việc chặt chẽ cùng đội ngũ kỹ sư, giám sát hiện trường và gia chủ để:
Điều chỉnh công năng sử dụng một cách khoa học
Tối ưu mặt bằng để tăng diện tích tiếp xúc ánh sáng, gió tự nhiên
Bố trí thang máy lộ thiên hài hòa với kiến trúc
Sử dụng vật liệu hoàn thiện cao cấp nhưng tiết chế để không rườm rà
Giữ lại hồn cốt tân cổ điển thông qua những đường cong, chi tiết vòm, gờ chỉ nhẹ nhàng

Không chỉ là đơn vị đã từng thực hiện nội thất biệt thự này, Sơn Hà Group còn là người đồng hành, thấu hiểu mong muốn của gia chủ. Qua mỗi công trình, chúng tôi không chỉ đặt yếu tố thẩm mỹ lên hàng đầu, mà còn:
Cam kết về giải pháp thiết kế tối ưu
Đội ngũ giám sát kỹ thuật tận nơi, bám sát thi công đến từng chi tiết
Tư vấn cải tạo bền vững, phù hợp với lối sống và thị hiếu lâu dài
Cải tạo biệt thự tân cổ điển là một hành trình không dễ dàng. Nó đòi hỏi cái nhìn tinh tế, kỹ thuật vững vàng và khả năng kết nối quá khứ với hiện tại, kiến trúc với cảm xúc.

Công trình tại Vinhomes Imperia một lần nữa khẳng định năng lực thiết kế – thi công trọn gói của Sơn Hà Group trong phân khúc biệt thự cao cấp. Và trên hết, là sự tin tưởng của gia chủ – những người yêu cái đẹp, và hiểu rằng một mái nhà không chỉ để ở, mà còn là nơi lưu giữ phong cách sống.
Hãy để Sơn Hà Group cùng bạn tạo nên một công trình vượt thời gian – vừa đẹp, vừa sống, vừa mang hồn kiến trúc.
Liên hệ với chúng tôi để nhận tư vấn chuyên sâu từ đội ngũ KTS giàu kinh nghiệm.
Ảnh khác
Bình luận