Mỗi công trình kiến trúc đều mang trong mình một câu chuyện, và mẫu thiết kế biệt thự Tân Cổ Điển 4 tầng này chính là bản giao hưởng đầy mê hoặc giữa nghệ thuật và không gian sống. Lấy cảm hứng từ những dinh thự châu Âu nguy nga, căn biệt thự này không chỉ mang vẻ đẹp bề thế mà còn thể hiện gu thẩm mỹ đỉnh cao của gia chủ.
Hãy cùng Sơn Hà Group khám phá chi tiết thiết kế biệt thự Tân Cổ Điển này và cảm nhận sự xa hoa trong từng đường nét!
NỘI DUNG CHÍNH






Biệt thự Tân Cổ Điển luôn là lựa chọn hàng đầu của những ai yêu thích vẻ đẹp tinh tế và trường tồn. Công trình này là sự kết hợp hài hòa giữa hình khối mạnh mẽ, chi tiết phào chỉ mềm mại và hệ mái Mansard sang trọng.
Mặt tiền biệt thự gây ấn tượng mạnh mẽ với:
Nhìn từ xa, biệt thự như một cung điện thu nhỏ giữa lòng thành phố, nơi mọi ánh nhìn đều phải trầm trồ thán phục.

Mái Mansard đặc trưng của phong cách Tân Cổ Điển không chỉ gia tăng tính thẩm mỹ mà còn giúp cách nhiệt và tối ưu công năng sử dụng. Kiến trúc mái vòm kết hợp ô cửa sổ hình bán nguyệt tạo nên vẻ đẹp đầy quyền lực, đậm chất quý tộc.
Là một biệt thự Tân Cổ Điển, biệt thự không thiếu các chi tiết phào chỉ phức tạp. Song với biệt thự này, gia chủ đã lựa chọn tiết giảm các họa tiết cầu kỳ quá mức mà thay vào đó là các chi tiết cổ điển tinh tế, đơn giản hơn. Các cửa sổ lớn được thiết kế xung quanh. Sự chuyển màu trong kiến trúc biệt thự cũng là chi tiết đắt giá giúp tăng sự hài hòa cho kiến trúc Tân Cổ Điển với xu hướng thiết kế tối giản của thời đại.
Thay vì cách phối gam màu vàng, trắng cùng các chi tiết có phần lỗi thời, giờ đây biệt thự đã chọn cho mình chiếc áo mới tươi sáng, trẻ trung và hiện đại hơn.
Bên cạnh việc tối giản các chi tiết cầu kỳ, các công năng trong biệt thự cũng được thiết kế sao cho phù hợp với nhu cầu sử dụng của gia chủ. Không gian nội thất bên trong, từ phòng khách, phòng ngủ đến phòng làm việc, đều được bố trí hợp lý, hài hòa với ngoại thất. Hệ thống ánh sáng, màu sắc và vật liệu được lựa chọn kỹ lưỡng để tạo ra một không gian sống đẳng cấp, vừa sang trọng vừa tiện nghi.
Để tận dụng không gian một cách hợp lý và phù hợp với nhu cầu sử dụng, đảm bảo sự riêng tư cần thiết, chúng tôi đã khéo léo bố trí không gian các phòng phù hợp với diện tích và nhu cầu sử dụng của từng thành viên. Các khu vực chức năng cũng được sắp xếp ổn thỏa trong từng tầng của biệt thự, đảm bảo mang đến cho gia chủ không gian sống mới tiện nghi, hài hòa.
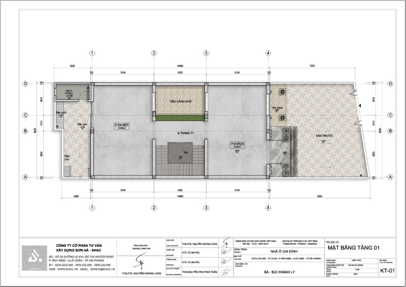
Tầng 1 được bố trí sân trước rộng rãi vừa để xe vừa là vườn cây, Phòng khách, Tiểu cảnh khô, Phòng bếp-ăn, Sảnh thang, Sân sau, WC
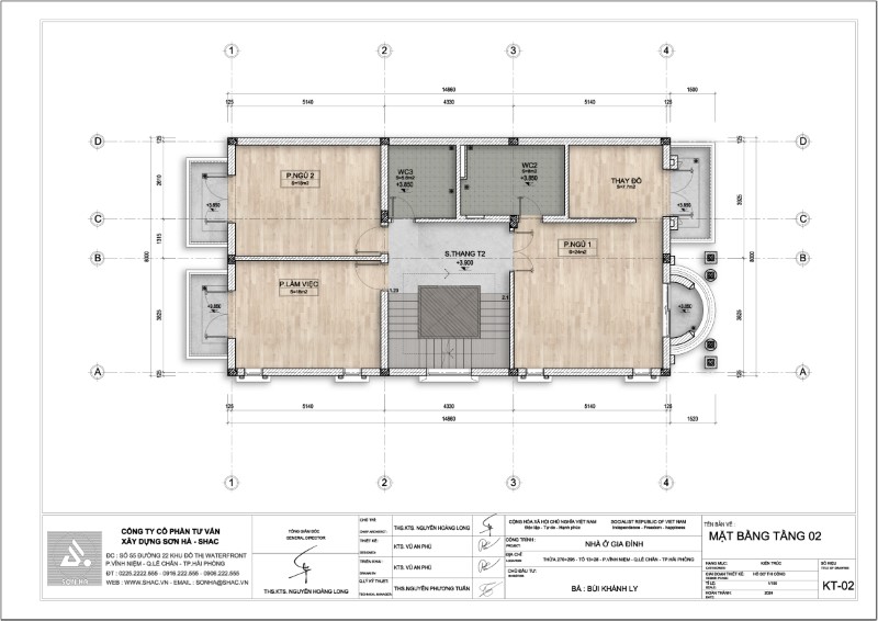
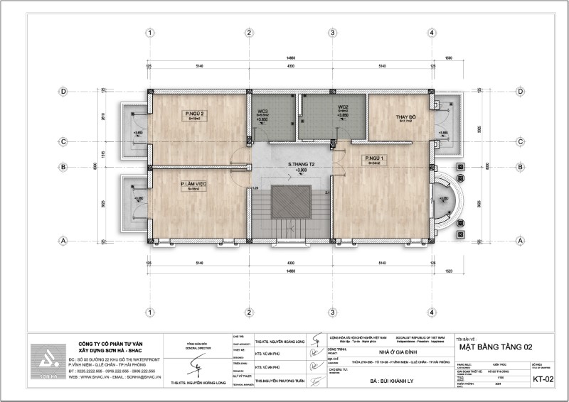
Tầng 2: Sảnh thang, 02 Phòng ngủ, Phòng làm việc, 02 WC, Thay đồ
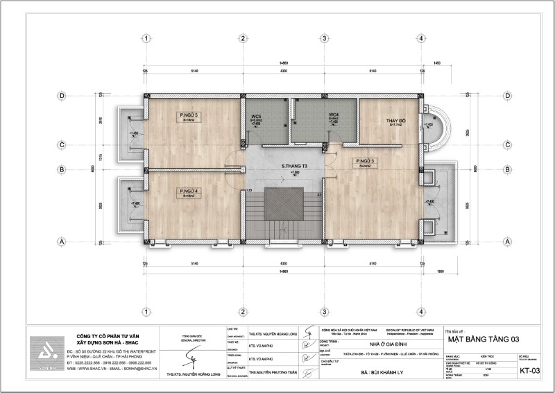
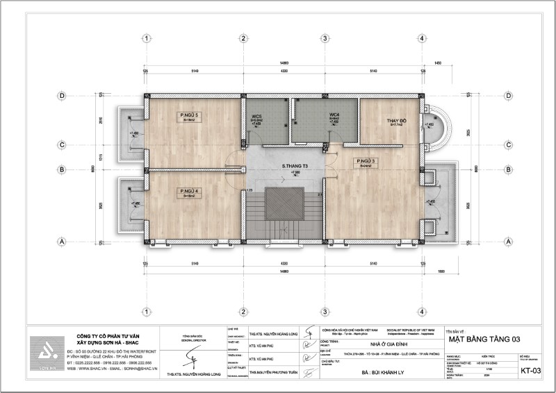
Tầng 3: Sảnh thang, 03 Phòng ngủ, 02 WC, Thay đồ
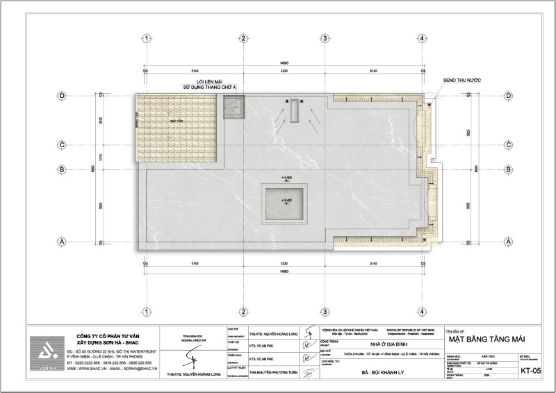
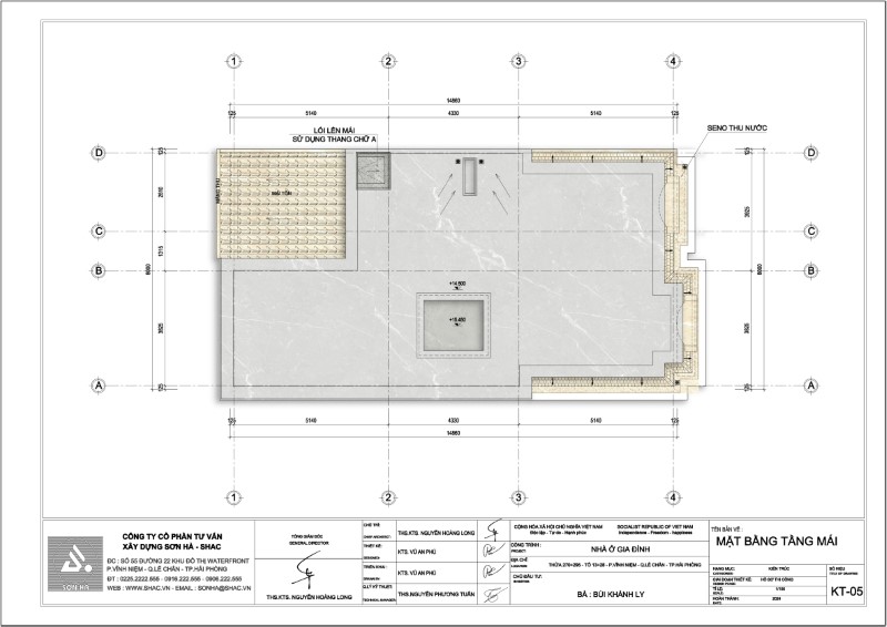
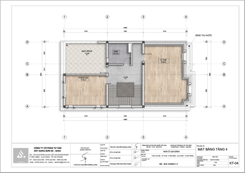
Tầng 4: Phòng thờ, Phòng ngủ giúp việc, Phòng kho, Giặt phơi
Khu vực sảnh chính là sự giao thoa hoàn mỹ giữa nét cổ điển sang trọng và hơi thở hiện đại, tạo nên một không gian đầy mê hoặc. Trần nhà được chạm khắc tinh tế, kết hợp cùng hệ thống đèn âm trần tỏa ánh sáng dịu nhẹ, làm nổi bật từng đường nét kiến trúc. Nền đá cẩm thạch với họa tiết hình học độc đáo hòa quyện cùng sắc vàng kim của thang máy, nâng tầm đẳng cấp cho không gian.

Tiểu cảnh trong nhà là một bản giao hưởng của thiên nhiên, nơi những tán cây xanh mướt vươn mình trong ánh sáng ấm áp, được điểm xuyết bởi những quả cầu phát sáng, mang đến sự bình yên và thư thái.


Phòng khách là bản giao hưởng của nghệ thuật và kiến trúc đỉnh cao. Bức tường đá marble với đường vân mạnh mẽ làm nền cho màn hình tivi âm tường, phía dưới là lò sưởi sinh học tỏa sáng ấm áp. Hai bên hệ tủ kệ gỗ óc chó phối kính và đèn LED, trưng bày tinh tế các vật phẩm nghệ thuật.

Không gian tiếp khách trung tâm toát lên sự thanh lịch với sofa bọc nỉ cao cấp, bàn trà mạ vàng tinh xảo trên thảm lông sang trọng. Điểm nhấn là bức tường nghệ thuật với hiệu ứng ánh sáng huyền ảo, phản chiếu trong trần gương lộng lẫy, tạo nên một không gian xa hoa và đầy cảm hứng.
Không gian bếp ăn là một bản giao hưởng của sự tinh tế và sang trọng, kết hợp hài hòa giữa chất liệu cao cấp và thiết kế hiện đại. Đảo bếp đá cẩm thạch với hệ đèn LED xuyên sáng tạo điểm nhấn huyền ảo, trong khi hệ tủ gỗ óc chó kết hợp sơn trắng nhã nhặn mang lại vẻ đẹp trang nhã và thanh lịch.


Đèn thả thủy tinh dáng trụ lấp lánh tựa những viên pha lê, soi rọi từng đường nét hoàn mỹ. Bộ bàn ăn bọc nhung mềm mại, chân mạ vàng sang trọng, kết hợp cùng kệ rượu kính viền kim loại ánh kim, tạo nên một tổng thể lộng lẫy, đẳng cấp và đầy tính nghệ thuật.

Chốn nghỉ ngơi được thiết kế đậm chất hiện đại với gam màu trầm ấm. Giường ngủ bọc nệm nhung mềm mại, tựa như ôm trọn mọi giác quan trong sự êm ái.

Vách đầu giường bọc da với họa tiết dệt tinh xảo mang đến nét độc đáo đầy cuốn hút. Hệ thống tủ quần áo cánh kính viền kim loại thanh lịch, kết hợp cùng ánh sáng dịu nhẹ từ đèn ngủ, tạo nên một không gian ấm cúng và tinh tế, nơi mỗi giấc ngủ đều trở thành một trải nghiệm thư thái đầy mê hoặc.



Thiết kế phòng ngủ con trai tại tầng 3 biệt thự tân cổ điển tại Hải Phòng mang đến một không gian sống hiện đại, tinh tế với tông màu trung tính chủ đạo như be, trắng kem và nâu nhạt. Căn phòng gây ấn tượng với thiết kế ánh sáng âm trần và đèn hắt đầu giường tạo nên điểm nhấn trang nhã, ấm áp. Giường ngủ lớn được đặt chính giữa, kết hợp cùng tủ đầu giường và trang trí nhẹ nhàng, mang lại cảm giác thư giãn tuyệt đối.

Không gian học tập được bố trí thông minh với bàn học công thái học điều chỉnh độ cao, giúp bé học tập thoải mái và bảo vệ sức khỏe. Hệ kệ tủ mở được tích hợp đèn LED vừa để lưu trữ sách vở, đồ chơi robot, vừa làm đẹp cho căn phòng. Ngoài ra, hệ tủ quần áo thiết kế âm tường, cửa kính phối khung màu đồng sang trọng giúp tiết kiệm diện tích mà vẫn đảm bảo công năng lưu trữ tối đa.

Phòng ngủ không chỉ là nơi nghỉ ngơi mà còn là không gian truyền cảm hứng học tập, sáng tạo, đồng hành cùng con phát triển toàn diện.
Phòng ngủ dành cho hai bé gái tại tầng 3 của biệt thự tân cổ điển được thiết kế nhẹ nhàng, đáng yêu với gam màu hồng pastel chủ đạo kết hợp cùng trắng kem dịu mắt. Tổng thể không gian mang đến cảm giác ấm áp, nữ tính nhưng vẫn hiện đại và thanh lịch.

Chiếc giường đôi được thiết kế tối giản với phần đầu giường bo cong ấn tượng, kết hợp đèn hắt ánh sáng dịu nhẹ tạo điểm nhấn nổi bật giữa phòng. Các gối ôm hình thú ngộ nghĩnh vừa trang trí vừa tạo cảm giác vui tươi, gần gũi cho trẻ nhỏ.

Hệ tủ quần áo âm tường cùng bàn học đôi đối xứng được sắp xếp thông minh, tối ưu diện tích và công năng. Bàn học đôi với đèn học cây nấm dễ thương, kệ sách âm tường và ghế công thái học giúp bé học tập thoải mái và tăng tính kết nối giữa hai chị em.

Phòng ngủ không chỉ là nơi nghỉ ngơi, mà còn là không gian nuôi dưỡng cảm xúc, sự sáng tạo và gắn kết yêu thương của các bé trong một môi trường sống lý tưởng.

Phòng làm việc được bố trí tại tầng 2 của biệt thự mang phong cách tân cổ điển hiện đại, là sự kết hợp hoàn hảo giữa tính thẩm mỹ tinh tế và công năng tối ưu. Không gian được thiết kế với bảng màu trung tính sang trọng như be, trắng ngà và nâu gỗ, tạo nên bầu không khí tập trung, chuyên nghiệp nhưng vẫn thư thái.

Bàn làm việc kích thước lớn với kiểu dáng tối giản đặt tại trung tâm, kết hợp cùng ghế công thái học mang lại sự thoải mái tối đa cho người sử dụng. Trần phòng được trang trí giật cấp kết hợp hệ đèn LED âm trần và đèn thả nghệ thuật, vừa chiếu sáng hiệu quả vừa nâng tầm thẩm mỹ không gian.


Tủ sách kịch trần thiết kế mở với đèn hắt sáng tạo điểm nhấn độc đáo, đồng thời tối ưu lưu trữ hồ sơ, sách vở và đồ trang trí. Cửa sổ lớn hai bên kết hợp rèm vải cao cấp giúp căn phòng luôn thoáng đãng và tràn ngập ánh sáng tự nhiên.

Đây không chỉ là nơi làm việc đơn thuần, mà còn là không gian lý tưởng để lên ý tưởng, sáng tạo và giải quyết công việc hiệu quả trong một môi trường đầy cảm hứng.
Phòng thờ được thiết kế tại vị trí cao và yên tĩnh nhất trong căn biệt thự, thể hiện sự thành kính và đạo lý “uống nước nhớ nguồn” của gia chủ. Không gian mang đậm phong cách tân cổ điển với sự kết hợp hài hòa giữa màu sắc trang nhã, vật liệu cao cấp và bố cục cân đối, tạo nên vẻ đẹp trang nghiêm mà vẫn gần gũi, ấm cúng.

Nội thất phòng thờ chủ yếu sử dụng chất liệu gỗ tự nhiên với các đường nét chạm khắc tinh xảo, thể hiện sự tôn kính và truyền thống. Bàn thờ chính được bố trí ở trung tâm, kết hợp cùng hệ tủ phụ và hoành phi câu đối tạo nên tổng thể hài hòa, chuẩn phong thủy.

Hệ thống ánh sáng được tính toán kỹ lưỡng, sử dụng đèn downlight, đèn chùm trung tâm với ánh sáng vàng ấm, tạo cảm giác tĩnh lặng, linh thiêng. Các vật phẩm thờ cúng được sắp xếp gọn gàng, đúng quy chuẩn, mang lại năng lượng tích cực cho toàn bộ không gian sống.

Phòng thờ không chỉ là nơi tưởng nhớ tổ tiên mà còn là điểm kết nối tâm linh - nơi nuôi dưỡng niềm tin, sự an yên và truyền thống tốt đẹp trong gia đình.


Là đơn vị tiên phong trong thiết kế và xây dựng biệt thự Tân Cổ Điển, Sơn Hà Group mang đến những công trình hoàn hảo với:

Sở hữu một biệt thự Tân Cổ Điển không chỉ là sở hữu một không gian sống, mà còn là sự khẳng định đẳng cấp, gu thẩm mỹ và phong cách sống tinh tế của gia chủ. Với thiết kế hoàn mỹ, từ ngoại thất đến nội thất, căn biệt thự 4 tầng này chính là biểu tượng của vẻ đẹp vượt thời gian.
Nếu bạn đang tìm kiếm một mẫu biệt thự Tân Cổ Điển ấn tượng, đừng ngần ngại liên hệ với Sơn Hà Group để được tư vấn và biến giấc mơ thành hiện thực!
Ảnh khác
Bình luận