Những mẫu thiết kế biệt thự hiện đại không còn là loại hình thiết kế công trình mới mẻ với nhiều chủ đầu tư. Tuy nhiên với mong muốn mang đến những thiết kế sáng tạo, độc đáo và đầy tính ứng dụng, đội ngũ kiến trúc sư Sơn Hà Group luôn tìm nhiều hơn các cách triển khai mới.
Cũng chính vì những lý do này mà Sơn Hà Group luôn là cái tên được nhiều chủ đầu tư tin tưởng lựa chọn khi nhắc đến các đơn vị thiết kế kiến trúc tại Hải Phòng nói riêng và toàn quốc nói chung. Trong bài viết ngày hôm nay, chúng tôi mời bạn đọc đến với một trong những công trình mới nhất vừa được hoàn thiện, căn biệt thự đẹp 3 tầng hiện đại tại Hải Phòng.
NỘI DUNG CHÍNH
Ngay từ lần gặp mặt đầu tiên cùng với chủ đầu tư của công trình, chúng tôi đã được nghe gia chủ chia sẻ về ý tưởng, mong muốn và những kỳ vọng về công trình trong mơ của mình. Với những hiểu biết của chủ đầu tư, Sơn Hà Group có thể nhanh chóng nắm bắt được ý định và phong cách chủ đạo cho công trình. Cũng chính bởi vì đó, quá trình tư vấn được rút ngắn thời gian và hai bên nhanh chóng tìm được phương án phù hợp nhất cho công trình lần này.

Chúng tôi đã thống nhất lựa chọn phương án thiết kế biệt thự hiện đại, với quy mô vừa đủ 3 tầng, tập trung vào công năng sử dụng cho gia chủ. Tiếp theo hãy cùng chúng tôi khám phá những không gian mặt tiền và nội thất công trình nhé!
Là phong cách thiết kế tiên phong của tương lai, phong cách hiện đại đem lại những ấn tượng được mô tả trong những tính từ: sáng tạo, tối giản và vượt thời gian. Nhóm kiến trúc sư Sơn Hà Group thể hiện không gian thông qua cách sắp xếp các hình khối kiến trúc tạo nên hiệu ứng thị giác nổi bật. Đi cùng kiến trúc 3 tầng, hiệu ứng xếp chồng xen kẽ của các hình khối thiết kế càng tạo nên chiều sâu và sự thu hút cho công trình này.

Về mặt lựa chọn màu sắc nổi bật, chúng tôi vẫn trung thành với các gam màu trung tính, dễ dàng kết hợp như: nâu. trắng, đen, xám,.. Đây là những màu sắc đủ “an toàn” nhưng không hề nhàm chán để tạo nên một không gian thiết kế hoàn hảo và đứng theo ý đồ của chủ đầu tư nhất có thể. Bên cạnh đó các màu be sáng, nâu nhạt, gỗ sáng cũng là những điểm nhấn khó quên cho mặt tiền 9m công trình.
Quý khách muốn sở hữu một biệt thự hoàn hảo, cá tính với chi phí hợp lý? Sơn Hà Group với 20 năm kinh nghiệm trong lĩnh vực thiết kế và xây dựng trọn gói các mẫu biệt thự đa dạng, hân hạnh được là người hỗ trợ quý khách:

Nói về kiến trúc, vẫn là các đường nét thiết kế tối giản và mạnh mẽ được sắp xếp song song hoặc vuông góc cùng nhau. Lấy cảm hứng từ thiết kế nhà hiện đại của tương lai , tổng thể ngôi nhà trở nên đặc biệt và ấn tượng hơn bao giờ hết.
Kiến trúc thời đại đi cùng cảm hứng đương đại, đây là gợi ý thú vị cho các chủ đầu tư đang tìm kiếm một công trình có phong cách tương tự. Tiếp theo bài viết hãy cùng đến với cách bố trí công năng sử dụng trong ngôi nhà này nhé!
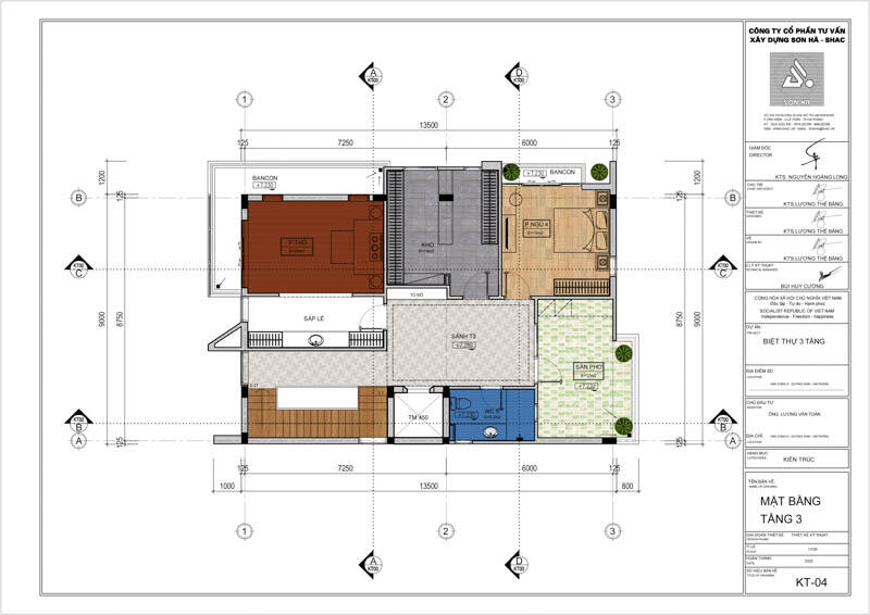
Bên cạnh kiến trúc sáng tạo, Sơn Hà Group còn nổi tiếng với việc đưa đến những phương án phân chia mặt bằng công năng sử dụng sáng tạo, tiện nghi và thông minh. Sau đây là phương án chia công năng đầy ấn tượng trong ngôi nhà của ngày hôm nay:
Cùng tham khảo thêm những hình ảnh khác về mặt bằng công năng sử dụng nhé!




Là người vừa yêu thích sự tối giản, vừa muốn khẳng định bản sắc của riêng mình, anh Tuấn mong muốn một không gian phòng khách cá tính mà đơn giản.
Hiểu được mong muốn đó, kiến trúc sư của Sơn Hà Group đã lựa chọn gam màu cơ bản như trắng, nâu, xám cho các chất liệu trong phòng khách. Từ bàn ghế, kệ để đồ cho đến gạch lát sàn, tất cả đều khẳng định vẻ đẹp ấm áp và thanh thoát của không gian.

Điểm nổi bật trong phòng khách là bức tường đá hiệu ứng với các đường vân sắc sảo, hút mắt người xem ngay từ cái nhìn đầu tiên.

Phòng bếp được thiết kế với không gian bếp, bếp phụ và phòng ăn nối tiếp nhau, tạo thành một không gian thoải mái, thuận tiện cho gia chủ trong quá trình sử dụng.
Các màu sắc trung tính tiếp tục được sử dụng để tạo sự cân xứng và ấm cúng cho không gian.

Khu vực bếp phụ rộng rãi được thêm vào, làm tăng diện tích bếp sử dụng, giải quyết bài toán khử mùi, thông gió cho gia chủ trong quá trình nấu nướng.

Phòng ăn lấy màu trắng làm màu chủ đạo, kết hợp với hệ đèn chùm cách điệu, viền gạch hiệu ứng, cửa nhôm kính cỡ lớn, mang đến hơi thở bình yên và hài hòa cho không gian.
Nhờ cách phối hợp nhịp nhàng này mà phòng ăn đã trở thành tâm điểm yêu thích cho những bữa ăn gắn kết gia đình.

Một điểm đặc trưng trong các phòng ngủ của anh Tuấn, chủ nhân của mẫu biệt thự hiện đại này, là mọi phòng ngủ đều sử dụng nền gạch giả gỗ và màu sắc trung tính trong thiết kế. Bằng một cách khéo léo, đặc điểm này đã khắc họa thành công vẻ đẹp sang trọng và ấm cúng của không gian phòng ngủ.

Vách ngăn hiệu ứng, cửa kính cỡ lớn và tranh tường nghệ thuật được lựa chọn làm điểm nhấn, khẳng định cá tính của chủ nhân mỗi căn phòng. Với phòng ngủ của con gái, sàn gạch giả gỗ kết hợp với tường xám, đồ nội thất hồng đã phác họa rõ nét nét đẹp nữ tính của chủ nhân căn phòng.

Bên cạnh các không gian chức năng cần thiết, biệt thự của anh Tuấn còn sở hữu một nơi chốn thú vị, đó là phòng hát karaoke cho cả gia đình. Lấy màu nâu làm tông màu chính, phòng hát được nhấn nhá với mảng tường nhựa vân đá và đợt gỗ sẫm màu, mở ra một không gian gần gũi và thư thái cho những khoảnh khắc “song ca” tuyệt vời.

Đặc biệt, phòng hát còn sử dụng hệ kính cường lực hút sáng cho căn phòng và cách âm hiệu quả.
Với mục đích lưu trữ và sắp xếp đồ đạc gọn gàng, phòng kho được tạo nên từ những chất liệu đơn giản nhất. Hệ tủ gỗ công nghiệp hiện đại, tường sơn trắng phối hợp nhịp nhàng với gương tròn và cửa nhôm kính lấy sáng. Nhờ cách tối ưu không gian, tập trung vào công năng sử dụng mà căn phòng vô cùng thông thoáng, tiện lợi cho gia chủ.

Các bức tranh tường nghệ thuật điểm xuyết cho khu vực sảnh các tầng, tạo ra nguồn cảm hứng tươi mới cho các thành viên trong gia đình.
Điểm đặc trưng ở không gian sảnh biệt thự đó là các khu vực lưu trữ được sắp xếp một cách tài tình trong không gian. Điều này không chỉ giúp gia chủ tận dụng được các khoảng trống hiệu quả mà còn tăng tính thẩm mỹ cho biệt thự.

Là một không gian tuyệt vời để gia chủ dành thời gian thư giãn bên gia đình, sân vườn đã được thiết kế với hệ mái nhôm kính cường lực và bàn trà ngoài trời. Các chất liệu gạch, đá cũng được lựa chọn để đảm bảo sự hài hòa và yên tĩnh cần có cho khu vực này.

Công thức tính đơn giản:
Chi phí xây dựng = Diện tích xây dựng x Đơn giá xây dựng
Trong đó, đơn giá xây dựng được tính dựa trên nhiều yếu tố, bao gồm:
Đơn giá xây dựng biệt thự hiện đại dao động từ 3,5 triệu đồng/m2 đến 5 triệu đồng/m2, tùy thuộc vào chất lượng vật liệu sử dụng và mức độ phức tạp của công trình.
Để sở hữu một mẫu biệt thự hiện đại ưng ý, trong quá trình xây dựng biệt thự hiện đại, quý khách cần lưu ý các điểm sau:
Đơn vị thiết kế và thi công uy tín sẽ giúp bạn sở hữu một bản thiết kế biệt thự đẹp và công trình xây dựng chất lượng.
Quý khách cần chuẩn bị kỹ lưỡng về mặt tài chính, giấy tờ pháp lý,... trước khi bắt đầu xây dựng biệt thự.
Để đảm bảo chất lượng của công trình, việc theo dõi sát sao tiến độ và hiệu quả xây dựng là vô cùng cần thiết. Việc này sẽ giúp bạn tính toán được các chi phí phát sinh trong quá trình xây dựng, dự đoán thời gian hoàn thiện công trình.
Để chọn được đơn vị thi công phù hợp cho biệt thự hiện đại của mình, bạn cần lưu ý các yếu tố sau:
Là đơn vị thiết kế thi công có hơn 20 năm kinh nghiệm, Sơn Hà Group tự hào là người đồng hành cùng bạn tạo nên những công trình nhà ở, biệt thự hiện đại chất lượng, sang trọng nhất.
Trên đây là toàn bộ phương án thiết kế và thi công của biệt thự Hiện đại 3 tầng do Sơn Hà Group thiết kế và thi công tại Hải Phòng. Đây là một gợi ý hoàn hảo cho các chủ đầu tư yêu thích phong cách hiện đại. Bạn có thể theo dõi các thiết kế và gợi ý khác trên trang chủ của Sơn Hà Group. Cảm ơn và hẹn gặp lại!
Ảnh khác
Bình luận